Dịch vụ thiết kế nhà tại Hà Nam đang được Kiến Trúc HC triển khai với nhiều ưu đãi hấp dẫn áp dụng cho nhà biệt thự, nhà cấp 4,…theo nhiều phong cách khác nhau. Với đội ngũ kiến trúc sư tài giỏi, có chuyên môn luôn nỗ lực hết mình mang đến cho quý khách những mẫu thiết kế đẹp, hiện đại đáp ứng tốt nhất nhu cầu sinh hoạt của các thành viên trong gia đình.
Kinh nghiệm thuê công ty thiết kế nhà tại Hà Nam uy tín
Một số tiêu chí lựa chọn đơn vị thiết kế nhà
Tại Hà Nam hiện có rất nhiều các đơn vị thiết kế – xây dựng kiến trúc trải dài trên các huyện, thị xã. Trong quá trình tìm kiếm đơn vị thiết kế nhà uy tín, hãy lựa chọn theo những tiêu chí sau:
- Công ty có địa chỉ trụ sở, số điện thoại rõ ràng
- Công ty có người đại diện pháp luật, giấy phép hành nghề tư vấn xây dựng,
- Có thông tin và hình ảnh về những dự án đã thiết kế.
- Đội ngũ nhân sự có chứng chỉ chứng minh năng lực tư vấn.
- Phong cách thiết kế phù hợp với gu thẩm mỹ của bạn.
- Tư vấn thiết kế theo yêu cầu, đảm bảo yếu tố phong thủy của bạn.

Tiêu chí lựa chọn đơn vị thiết kế nhà uy tín là gì?
Kinh nghiệm ký hợp đồng tư vấn thiết kế nhà
Một khi bạn đã hài lòng với phương án thiết kế của công ty tư vấn đưa ra. Bạn phải tiến hành ký kết hợp đồng thiết kế. Sau đó, công ty sẽ yêu cầu khách hàng đặt cọc tiền trước khi thiết kế nhà. Số tiền đặt cọc có thể từ 10-30% giá trị hợp đồng. Vì vậy, bạn cần hết sức cẩn trọng với những đơn vị yêu cầu cọc trên 60% giá trị hợp đồng để đảm bảo quyền lợi của bạn.
Có thể bạn cũng quan tâm: thiết kế nhà Hải Phòng
Giới thiệu về dịch vụ thiết kế nhà tại Hà Nam của Kiến trúc HC
Với nhiều năm kinh nghiệm trong nghề, công ty Kiến Trúc HC hiện đang mở rộng nhiều chi nhánh để đáp ứng tốt nhất nhu cầu của mọi đối tượng khách hàng. Trong đó, dịch vụ thiết kế nhà tại tỉnh Hà Nam đang được triển khai mạnh mẽ tại nhiều huyện, xã theo nhiều hình thức nhà ở như: nhà cấp 4, nhà biệt thự,….Với đội ngũ kiến trúc sư giàu kinh nghiệm và chuyên môn sẽ tư vấn cho quý khách phong cách thiết kế phù hợp với sở thích và điều kiện kinh tế nhất.

Kiến Trúc HC có nhiều năm kinh nghiệm xử lý thiết kế & thi công các công trình nhà ở, khách sạn, nhà hàng,…
Thông tin liên hệ:
Công ty Kiến Trúc HC
- Địa chỉ: Số 226 Đinh Tiên Hoàng, P. Trần Hưng Đạo, TP Phủ Lý, tỉnh Hà Nam
- Số điện thoại: 094.626.7555 – 097.961.6043
- E-mail: kientruchc@gmail.com
Quy trình thiết kế nhà Hà Nam tại Kiến Trúc HC

Quy trình thiết kế nhà tại tỉnh Hà Nam của Kiến Trúc HC
Các bước cung cấp dịch vụ thiết kế nhà được Kiến Trúc HC triển khai theo các bước như sau:
Bước 1: Tiếp nhận thông tin, tư vấn thiết kế sơ bộ
Sau khi nhận thông tin của khách hàng, chúng tôi sẽ tư vấn sơ bộ cho bạn qua điện thoại về quiy trình làm việc. Quý khách có thể ghé trực tiếp tại văn phòng của chúng tôi hoặc liên hệ qua số hotline để được gửi hợp đồng thiết kế từ xa.
Bước 2: Khảo sát sơ bộ địa hình
Sau khi tư vấn sơ bộ về phương án làm việc, chúng tôi sẽ cử nhân viên xuống tận nơi để khảo sát địa hình, địa thế mảnh đất để từ đó thống nhất với khách hàng về phong cách thiết kế, bố trí công năng dựa trên mong muốn và khả năng tài chính của khách hàng.
Bước 3: Ký hợp đồng & tạm ứng lần 1
Hai bên thống nhất ký hợp đồng với những điều khoản chi tiết. Khách hàng tiến hành tạm ứng phí 30% giá trị hợp đồng.
Bước 4: Thiết kế bản vẽ 2D, 3D
Kiến trúc sư lên phương án thiết kế phối cảnh 2D, 3D dựa theo những thông tin nghiên cứu và yêu cầu của khách hàng.
Bước 5: Triển khai hồ sơ kỹ thuật thi công
Sau khi khách hàng chốt phương án thiết kế theo bản vẽ 2D, 3D, chúng tôi sẽ triển khai hồ sơ kỹ thuật thi công.
Bước 6: Bàn giao hồ sơ
Sau khi hồ sơ kỹ thuật thi công hoàn thành 100%, quý khách tiến hành thanh toán giá trị còn lại của hợp đồng. Chúng tôi tiến hành gửi khách hàng hồ sơ bản vẽ thi công qua đường chuyển phát nhanh hoặc nhận trực tiếp tại văn phòng.
Tham khảo dịch vụ: thiết kế nhà Vĩnh Phúc
Bảng báo giá thiết kế nhà tại Hà Nam của Kiến Trúc HC
Dưới đây là bảng giá thiết kế nhà chi tiết của Kiến Trúc HC cho khách hàng tham khảo:
| Thiết kế nhà phố | 110.000 – 180.000 đ/m2 |
| Thiết kế biệt thự | 120.000 – 190.000 đ/m2 |
| Thiết kế nhà hàng | 70.000 – 170.000 đ/m2 |
| Thiết kế khách sạn | 70.000 – 170.000 đ/m2 |
| Thiết kế nhà xưởng | 40.000 – 90.000 đ/m2 |
| Thiết kế quán Cafe | 80.000 – 250.000 đ/m2 |
| Thiết kế nhà hiện đại | Chưa có nội thất 3D: 100.000 đ/m2 – 120.000đ/m2 |
| Có nội thất 3D: 160.000 đ/m2 – 180.000đ/m2 | |
| Thiết kế nhà mái thái | Chưa có nội thất 3D: 110.000 đ/m2 – 130.000 đ/m2 |
| Có nội thất 3D: 160.000 đ/m2 – 180.000đ/m2 | |
| Thiết kế nhà tân cổ điển
* Chú ý: Nhà phố 2 mặt tiền cộng thêm 10.000đ/m2 |
Chưa có nội thất 3D: 130.000 đ/m2 – 150.000 đ/m2 |
| Có nội thất 3D: 180.000 đ/m2 – 200.000đ/m2 |
* Lưu ý: Bảng giá trên chỉ mang tính tham khảo, để được báo giá chính xác, mời bạn liên hệ qua hotline: 0946.267.555 – 0979.616.043.
Thành phần hồ sơ thiết kế nhà bao gồm những gì?
Hồ sơ thiết kế nhà tại tỉnh Hà Nam bao gồm những thành phần dưới đây:

Vì sao nên lựa chọn Kiến Trúc HC khi thiết kế nhà tại Hà Nam?
Kiến Trúc HC là một đơn vị thiết kế nhà ở có nhiều chi nhánh trên khắp các tỉnh thành trên cả nước trong đó có tỉnh Hà Nam. Một số lý do khiến khách hàng luôn tin tưởng lựa chọn dịch vụ thiết kế nhà của Kiến Trúc HC:
Đơn vị có nhiều năm kinh nghiệm
Kiến Trúc HC có hơn 10 năm kinh nghiệm trong lĩnh vực thiết kế nhà ở với đa dạng phong cách như: hiện đại, cổ điển, tân cổ điển,…Chúng tôi cam kết sẽ mang tới cho bạn một công trình kiến trúc bền bỉ theo năm tháng, có tính thẩm mỹ cao và phù hợp với nhu cầu sử dụng của khách hàng.
Đội ngũ nhân sự năng lực
Kiến Trúc HC sở hữu đội ngũ nhân sự có kinh nghiệm và chuyên môn hứa hẹn sẽ tư vấn cho khách hàng những phương án thiết kế bắt kịp xu hướng hiện nay nhất. Với phương châm làm việc coi khách hàng là trọng tâm của mọi dự án, đội ngũ KTS luôn lắng nghe mọi mong muốn của khách hàng. Từ đó, mang đến một công trình kiến trúc không chỉ đơn thuần là nhà ở mà còn là nơi gìn giữ tâm hồn, thắp lửa hạnh phúc gia đình.
Giá dịch vụ phải chăng
Hiện nay, chi phí thiết kế nhà tại tỉnh Hà Nam của Kiến Trúc HC đang được giảm giá 10% cho 50 khách hàng đăng ký đầu tiên. Có thể nói, đây là mức giá khá cạnh tranh trên thị trường hiện nay và phù hợp với khả năng kinh tế của người dân Việt.
Cam kết bản vẽ chi tiết, đầy đủ
Kiến Trúc HC cam kết sẽ cung cấp cho quý khách hàng bản vẽ bố trí công năng đầy đủ, chi tiết hiển thị toàn bộ hiện trạng của ngôi nhà theo đúng yêu cầu và mong muốn của khách hàng.
Tổng hợp các mẫu thiết kế nhà tại Hà Nam của Kiến Trúc HC
Thật may mắn khi đơn vị Kiến Trúc HC chúng tôi đã có cơ hội nhận thầu hàng trăm dự án thiết kế nhà tại tỉnh Hà Nam. Sau đây là một số mẫu thiết kế do chúng tôi thực hiện để bạn đọc có thể tham khảo:
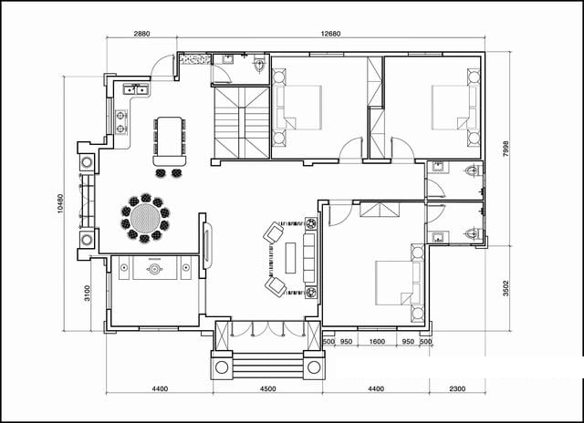
Mẫu thiết kế nhà cấp 4 3 phòng ngủ 1 phòng thờ
Thông tin dự án
- Chủ đầu tư dự án: Anh Đào Hoàng Hiệp
- Địa chỉ: 8 Võ Thị Sáu, Trần Hưng Đạo, Phủ Lý, Hà Nam.
- Phong cách thiết kế: Đơn giản
- Diện tích xây dựng: 180m2

Mẫu nhà cấp 4 3 phòng ngủ và 1 phòng thờ trên có diện tích 180m2 được chúng tôi thực hiện cho nhà anh Tùng tại Thái Nguyên. Ngôi nhà được thiết kế theo phong cách tân cổ điển với hệ vòm mái chữ A kết hợp với đường chỉ phào nhẹ nhàng giúp tạo tổng thể ấn tượng và tinh tế cho ngôi nhà. Đặc biệt, do anh Tùng là người khá chú trọng thờ cúng tổ tiên nên chúng tôi đã quyết định bố trí một phòng thời riêng biệt bên hông trái của ngôi nhà. Toàn bộ không gian sẽ đón ánh sáng qua cửa sổ 4 cánh cường lực có rèm kéo 2 lớp.

Từ sảnh chính bước vào là là khu vực phòng khách rộng khoảng 40m2. Ngoài phần tiền sảnh chính, ngôi nhà còn có 1 sảnh phụ bên hông bước vào từ khu vực bên trái. Đây chính là không gian thờ được thiết kế vô cùng tiện nghi và lịch sự. Bên cạnh đó, việc thiết kế như vậy giúp lấy ánh sáng và gió mát thêm cho không gian bar và phòng ăn ở giữa. 3 phòng ngủ được thiết kế phong cách tương đồng nhau. Trong đó có một phòng được thiết kế nhà vệ sinh khép kín.

Không gian phòng thờ trang nghiêm sử dụng chất liệu gỗ công nghiệp màu trầm ấm
Mẫu thiết kế nhà phố kết hợp kinh doanh
Thông tin dự án
- Chủ đầu tư dự án: Anh Nguyễn Hoàng Khải
- Địa chỉ: Xóm 3, Bình Lục, Hà Nam.
- Phong cách thiết kế: Tân cổ điển
- Diện tích xây dựng: 38m2

Kiểu mái thái lợp ngói xanh kết hợp với phong cách bán cổ điển pha chút hiện đại khá phù hợp với những gia chủ yêu thích nhịp độ sống nhanh nơi thành thị. Tầng trệt chủ yếu được sử dụng với mục đích kinh doanh được ốp gạch đá bền đẹp, nổi bật kết hợp với cửa cuốn tự động tiện lợi. Toàn bộ sàn tầng 1 có diện tích khoảng 110m2 với phần vỉa hè 4m. Các khu vực chính của tầng 1 bao gồm: khu bán hàng, phòng khách, phòng bếp, nhà vệ sinh. Tầng 2 là 2 phòng ngủ và 1 phòng học chung. Trong đó, phòng ngủ được ngăn cách bởi phòng học chung để vừa đảm bảo sự riêng tư và không gian rộng rãi cho căn nhà. Tầng 3 bao gồm phòng thờ, phòng ngủ, nhà vệ sinh và sân phơi. Trong đó, phần sân phơi chính là khoảng hiên tầng 3, phòng thờ bên cạnh phòng ngủ 3 và cách cầu thang là nhà vệ sinh.
Mẫu thiết kế nhà ống 2 tầng 1 tum
Thông tin dự án
- Chủ đầu tư dự án: Chị Đỗ Thúy My
- Địa chỉ: thôn Nhất, xã Bạch Thượng, huyện Duy Tiên, Hà Nam.
- Phong cách thiết kế: Hiện đại
- Diện tích xây dựng: 47m2
Nhà ống 2 tầng 1 tum hiện nay đang là sự lựa chọn của khá nhiều gia chủ. Chúng không chỉ đáp ứng tốt nhu cầu sinh hoạt mà còn nâng cao chất lượng đời sống cho bạn. Mẫu nhà dưới đây sở hữu nét đẹp nổi bật nhờ các thanh gỗ mảnh xếp dọc và các hình khối được phân chia rõ ràng. Theo đó, phần tum với phần mái hiên rộng bằng gỗ đua ra giúp đón nắng gió hiệu quả. Tại đây, gia chủ có thể tận dụng trồng thêm cây xanh giúp cho không gian thêm thoáng đãng và đẹp mắt hơn.

Mẫu nhà 2 tầng 1 tum phong cách hiện đại, trẻ trung
- Tầng trệt của ngôi nhà chủ yếu chia thành 2 phần chính: phía trước là sân vườn lát gạch vân xi măng màu Dark Grey vừa đảm bảo sạch sẽ, vừa mang đến nét đẹp sang trọng cho không gian. Đi sâu vào bên trong là phòng khách liên thông với phòng ăn vô cùng rộng rãi. Nền lát bằng sàn gỗ công nghiệp cao cấp với màu sắc trẻ trung, tươi sáng.
- Tầng 2 chủ yếu là 3 phòng ngủ và 1 phòng sinh hoạt chung được thiết kế tiện nghi, ấm cúng và riêng tư giúp gia chủ thoải mái thư giãn sau một ngày làm việc mệt mỏi.
- Trên cùng là tầng tum chủ yếu để làm sân phơi và phòng thờ.
Mẫu thiết kế nhà phố có gara
Thông tin dự án
- Chủ đầu tư dự án: Chị Nguyễn Phương Chi
- Địa chỉ: 4 Trần Hưng Đạo, Quế, huyện Kim Bảng, Hà Nam.
- Phong cách thiết kế: Sang trọng
- Diện tích xây dựng: 39m2
Kiểu nhà có gara ô tô khá phù hợp với những gia đinh có đông thành viên. Theo đó, diện tích của gara sẽ phụ thuộc vào loại xe mà bạn sử dụng. Nếu gara chứa xe ô tô 4 chỗ thì kích thước tối thiểu cần đạt được đó là 3.5m x 5m hoặc 3.5m x 5.5m. Còn nếu chứa xe máy thì kích thước có thể chứa 1 xe là 3.5m x 5m hoặc 3.5m x 5.5m. Để tiết kiệm chi phí, chúng tôi đã thi công trần gara bằng thạch cao, gạch lát nền là loại gạch đá xẻ tự nhiên, có khả năng chống trơn trượt tốt. Bên trong là hệ thống đèn chiếu sáng giúp đảm bảo an toàn cho việc lấy hoặc cất xe vào ban đêm.

Mẫu nhà phố có gara với gam màu trung tính hiện đại
Ngôi nhà được thiết theo kiểu lệch tầng vô cùng ấn tượng kết hợp với hệ thống cửa kính bằng nhôm xingfa lại càng tăng thêm sự cá tính cho công trình. Bên cạnh đó, chúng tôi cũng không quên trang trí thêm cây cảnh rải rác từ tầng trệt cho tới tầng thượng để vừa đáp ứng mục đích trang trí, vừa tạo bầu không khí thông thoáng cho không gian.
Thiết kế nhà phố 3 tầng
Thông tin dự án
- Chủ đầu tư dự án: Anh Trần Anh Khôi
- Địa chỉ: Đường 491, xóm Bảng, huyện Lý Nhân, Hà Nam.
- Phong cách thiết kế: Hiện đại
- Diện tích xây dựng: 50m2
Mẫu nhà phố 3 tầng dưới đây thuộc quyền sở hữu của anh Vinh và được Kiến Trúc HC hoàn thành thi công vào tháng 6/2021. Sau rất nhiều lần trao đổi và khảo sát, chúng tôi đã đi đến thống nhất lựa chọn phong cách hiện đại cho ngôi nhà. Loại bỏ những chi tiết hoa văn rườm rà, các hình khối được bố trí khoa học mang đến nét đẹp sang trọng cho công trình. Mặt bằng của các tầng được bố trí mảng tường giật cấp lùi sâu dần bên trong giúp phân bổ ánh sáng đồng đều cho từng không gian.

Phối cảnh ngoại thất nhà 3 tầng phong cách hiện đại
- Tầng trệt bao gồm sân trước dùng làm nơi đỗ xe, phòng khách, cầu thang thông tầng, phòng bếp, sân sau.
- Tầng 2 bao gồm 2 phòng ngủ, 1 WC và tầng 3 cũng tương tự như vậy. Không gian ở 2 tầng trên được thiết kế khá riêng tư nhằm đáp ứng tốt nhất nhu cầu nghỉ ngơi của gia chủ. Trong đó, tất cả các phòng được bố trí rộng rãi, thoải mái đảm bảo di chuyển lên xuống thuận tiện.
Thiết kế nhà phố 4 tầng
Thông tin dự án
- Chủ đầu tư dự án: Anh Trịnh Duy Quang
- Địa chỉ: 494 Thanh Hà, huyện Thanh Liêm, Hà Nam.
- Phong cách thiết kế: Hiện đại
- Diện tích xây dựng: 50m2
Thông thường, người ta thường chọn mẫu nhà ống 4 tầng nếu sở hữu một mảnh đất có diện tích hạn chế, chỉ có thể mở rộng diện tích theo chiều cao nhưng đảm bảo đáp ứng đầy đủ công năng sử dụng sinh hoạt cho các gia đình. Căn nhà dưới đây được trang trí đơn giản, không quá cầu kỳ. Các chi tiết như gỗ, kính cường lực được sử dụng để tăng vẻ đẹp cho ngôi nhà. Hệ lam gỗ màu trầm ấm nổi bật trên nền trắng sẽ tạo điểm nhấn cho mặt tiền căn nhà thêm nổi bật.

Phối cảnh 3D ngoại thất nhà 4 tầng tại con phố Trường Chinh, Đống Đa, Hà Nội

Mẫu phòng ngủ cho bố mẹ với nội thất tiện nghi, ấm cúng nhờ sắc màu trầm ấm của gỗ và sự dịu nhẹ của ánh đèn vàng

Phòng ngủ đôi cho bé trai và bé gái với màu sắc lôi cuốn, trang trí vui nhộn, sáng tạo

Phòng tắm nhỏ xinh với những họa tiết bắt mắt từ giấy và xốp dán tường
Trên đây là một số thông tin về dịch vụ thiết kế nhà tại Hà Nam của công ty Kiến Trúc HC và một số mẫu nhà cho bạn tham khảo. Hy vọng rằng, những thiết kế này sẽ phù hợp với sở thích và gu thẩm mỹ của bạn, là tiền đề cho sự hợp tác thành công giữa bạn và Kiến Trúc HC.
