Hiện nay, xu hướng thiết kế nhà biệt thự độc đáo ngày càng được ưa chuộng. Mỗi ngôi biệt thự lại tượng trưng cho tính cách, sở thích, bề thế và địa vị của gia chủ. Chính vì vậy, việc lựa chọn đơn vị thi công thiết kế biệt thự là điều vô cùng quan trọng. Bài viết dưới đây sẽ giới thiệu tới bạn đơn vị thiết kế biệt thự tại Hải Phòng đẹp, chuyên nghiệp số 1. Cùng các mẫu thiết kế biệt thự sang trọng, đẳng cấp nhất. Mời các bạn cùng theo dõi!
Giới thiệu dịch vụ thiết kế biệt thự tại Hải Phòng
Thiết kế biệt thự là dạng thiết kế độc đáo nhất, là sự phối hợp hài hòa và đồng bộ giữa nội– ngoại thất để mang đến sự thu hút và tính thẩm mỹ cao nhất. Chính vì vậy, thiết kế biệt thự đòi hỏi những kiến trúc sư có chuyên môn cao và giàu kinh nghiệm để tạo nên những ngôi biệt thự ưng ý nhất.
Đến với Kiến trúc HC, bạn có thể hoàn toàn yên tâm bởi chúng tôi sẵn sàng đem đến cho bạn những thiết kế biệt thự tại Hải Phòng độc đáo, riêng biệt và đẹp nhất. Với đội ngũ kỹ sư, kiến trúc sư chuyên nghiệp, có chuyên môn cao, cam kết làm hài lòng mọi quý khách hàng.
Quý khách có nhu cầu tư vấn, thiết kế nhà ở vui lòng liên hệ:
CÔNG TY CỔ PHẦN KIẾN TRÚC & NỘI THẤT HC VIỆT NAM
Địa chỉ: Số 4 Đường Trực Cát, Kênh Dương, Lê Chân, Hải Phòng
Phone: 0946267555 – 0979616043
E-mail: kientruchc@gmail.com
Website: https://www.kientruchc.com

Kiến trúc HC là đơn vị thiết kế biệt thự uy tín, chất lượng tại Hải Phòng
Quy trình thiết kế biệt thự tại Hải Phòng
Dưới đây là quy trình thiết kế biệt thự cụ thể nhất mà bạn có thể tham khảo:
Khảo sát địa hình, xác định nhu cầu gia chủ
Bước đầu tiên, cần xác định địa hình thi công và xác định được nhu cầu thiết kế của gia chủ. Từ đó, có thể đưa ra cho khách hàng những gợi ý, phương án thiết kế biệt thự hiện đại, tối ưu nhất.
Lưu ý, cần đo đạc địa hình chính xác để làm cơ sở tính toán, bố trí và thiết kế những vật dụng khi lên bản vẽ thiết kế nhé.
Lên bản vẽ thiết kế biệt thự
Bản vẽ sẽ được lên theo ý tưởng đã thống nhất với khách hàng. Cần kết hợp giữa yêu cầu của khách hàng với những đóng góp cần thiết, giá trị của kiến trúc sư để có được bản vẽ đẹp, tối ưu nhất.
Lựa chọn vật liệu thiết kế
Dựa vào chi phí đầu tư, nhu cầu của khách hàng mà các kiến trúc sư cần lên kế hoạch để lựa chọn vật liệu phù hợp nhất. Lưu ý, cần cân nhắc để có thể thực hiện được theo đúng bản vẽ và đảm bảo an toàn cho biệt thự.
Giám sát thi công đúng tiến độ
Cần đảm bảo thi công đúng tiến độ đã cam kết trong hợp đồng với khách hàng. Đơn vị thiết kế sẽ tiến hàng giám sát chặt chẽ để có thể hoàn thành công trình đúng tiến độ bàn giao cho khách hàng.
Báo giá thiết kế biệt thự tại Hải Phòng
Dưới đây là báo giá thiết kế biệt thự tại tỉnh Hải Phòng mà chúng tôi đang triển khai:
- Thiết kế Kiến trúc: 200.000 – 250.000 đồng/m2
- Thiết kế Nội thất: 250.000 – 300.000 đồng/m2
Lưu ý: Giá thiết kế trên của chúng tôi chỉ mang tính chất tham khảo. Để được báo giá chi tiết nhất, quý khách vui lòng liên hệ Kiến trúc HC theo hotline: 0946267555 – 0979616043 để được hỗ trợ.
Xem thêm dịch vụ: thiết kế nhà Hải Phòng
Thành phần hồ sơ thiết kế biệt thự tại Hải Phòng

Xem thành phần hồ sơ thiết kế biệt thự file PDF đầy đủ TẠI ĐÂY
Tại sao thiết kế biệt thự tại Hải Phòng nên chọn Kiến trúc HC?
Nếu quý khách còn đang băn khoăn không biết lựa chọn đơn vị thiết kế biệt thự nào đẹp, uy tín thì hãy liên hệ ngay tới Kiến trúc HC. Kiến trúc HC đảm bảo mang đến sự hài lòng nhất cho quý khách hàng.
Nguồn nhân lực
Kiến trúc HC có đội ngũ kiến trúc sư chuyên môn cao, giàu kinh nghiệm trong lĩnh vực thiết kế biệt thự đẹp. Chúng tôi cam kết mang đến cho khách hàng những mẫu thiết kế độc đáo, ấn tượng, riêng biệt và ưng ý nhất.
Tôn trọng ý kiến khách hàng
Tôn chỉ làm việc của Kiến trúc HC là đặt lợi ích của khách hàng lên hàng đầu. Chính vì thế, chúng tôi luôn luôn lắng nghe và tôn trọng mọi ý kiến của khách hàng. Kiến trúc HC đảm bảo đem lại sự hài lòng và ưng ý nhất.
Trách nhiệm với công việc
Kiến trúc HC luôn làm việc trên tinh thần trách nhiệm cao nhất, luôn cố gắng hết khả năng để mang đến cho khách hàng những mẫu thiết kế biệt thự đẹp nhất. Chúng tôi luôn luôn sẵn sàng chịu trách nhiệm với mọi công trình mà mình thiết kế.
Khả năng thi công
Kiến trúc HC có đội ngũ kiến trúc sư đông đảo, giàu kinh nghiệm đảm bảo khả năng thi công nhanh chóng nhất. Chúng tôi cam kết hoàn thành trong thời gian đã thỏa thuận và bàn giao đến khách hàng những mẫu thiết kế hoàn thiện nhất.
Một số mẫu thiết kế biệt thự tại Hải Phòng
Dưới đây là tổng hợp một số mẫu thiết kế biệt thự đẹp, sang trọng, đẳng cấp tại Hải Phòng mà các bạn có thể tham khảo:
Mẫu thiết kế biệt thự 3 tầng theo phong cách hiện đại
Thông tin dự án:
- Chủ đầu tư: Chị Hoàng Minh Ngọc
- Đơn vị thi công: Kiến trúc HC
- Phong cách thiết kế: Hiện đại
- Địa chỉ: Hải Phòng
- Diện tích: 350m2

Biệt thự thiết kế theo phong cách hiện đại, sang trọng với 3 tầng bề thế và 2 mặt tiền rộng rãi. Nét thiết kế mạnh mẽ được nhấn nhá thêm những đường nét hoa văn nhẹ nhàng mang đến vẻ kiều diễm, độc đáo, sang trọng và tinh tế cho ngôi nhà.

Biệt thự sử dụng gam màu trắng chủ đạo làm nổi bật nét hiện đại và tăng tính thẩm mỹ cho ngôi nhà. Công trình sử dụng hoàn toàn chất liệu hiện đại như xi măng, sắt sơn, kính chống sét. Điểm nhấn của ngôi nhà chính là hệ thống ban công thoáng rộng kết hợp nhiều cây xanh và tận dụng triệt để nguồn năng lượng tự nhiên vào trong nhà.

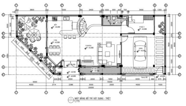
Tầng 1 của biệt thự là phòng khách có sảnh lớn, 1 gara xe ở bên phải và bên trong có một phòng ngủ nhỏ đầy đủ tiện nghi, thông thoáng. Bên trái phòng khách là phòng bếp thiết kế liền nhau tạo không gian mở và ấm cúng cho các thành viên trong gia đình. Cạnh bếp có cửa đi ra vườn sau tiện lợi.

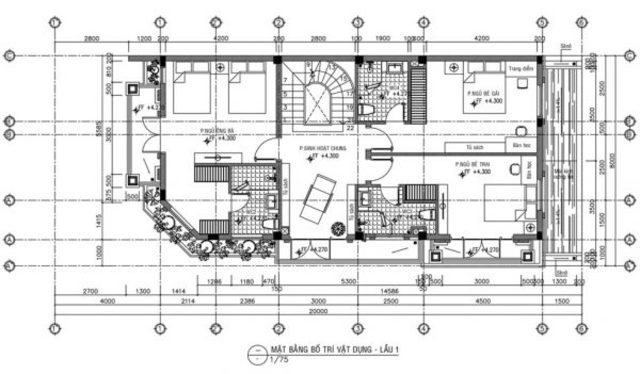
Tầng 2 có 3 phòng ngủ đầy đủ tiện nghi cho bố mẹ và 2 em bé. Tất cả các phòng ngủ đều được thiết kế vách ngăn, cửa sổ kính trong suốt đem đến sự thoáng đãng, rộng rãi và sang trọng. Tầng 2 còn được thiết kế phòng sinh hoạt chung rộng rãi cho cả gia đình.

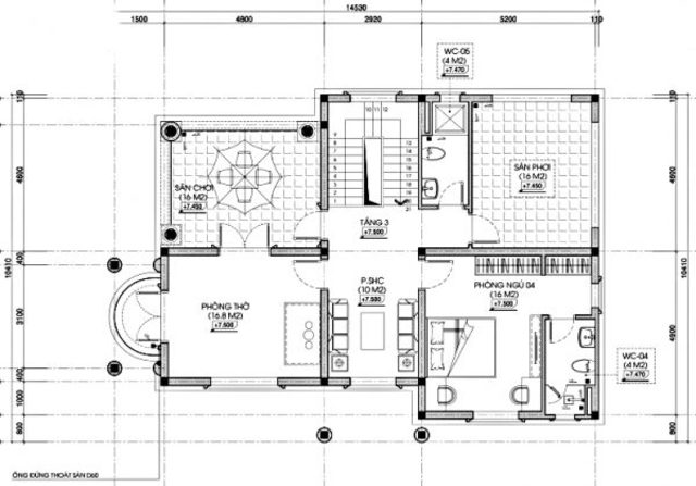
Tầng 3 là nơi thờ phụng yên tĩnh và cao nhất. Bên cạnh đó là một phòng ngủ master rộng rãi, đầy đủ tiện nghi. Phía ngoài tầng 3 là ban công lớn đem đến ánh sáng và sự thông thoáng tối đa cho phòng ngủ.
Mẫu thiết kế biệt thự phong cách tân cổ điển

Đây là mẫu thiết kế biệt thự tân cổ điển 220m2 đẳng cấp và tinh tế với gam màu trắng tinh khôi và điểm nhấn màu xanh navy của mái nhà cũng các hoa văn mềm mại tôn lên vẻ sang trọng và tinh tế cho ngôi nhà. Hệ thống ban công rộng rãi được phối cùng các chậu hoa, cây cảnh mang đến không gian sống xanh, thông thoáng.

Với những mảng tường vuông, trụ cột tròn kết hợp với hoa văn màu vàng đồng sang trọng cùng sự cân đối của chiều cao, chiều rộng ngôi nhà đã mang lại những nét ấn tượng mạnh mẽ với người xem bởi vẻ đẹp hào nhoáng, tráng lệ và đẳng cấp.

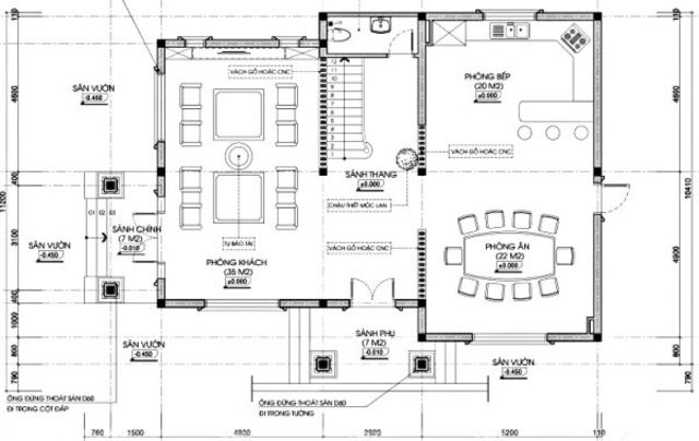
Tầng 1 là phòng khách lớn được thiết kế sang trọng và cầu thang nối thông suốt giữa các tầng. Phía sau là nhà bếp được ngăn cách với phòng khách bởi vách gỗ vừa tạo độ thoáng cho không gian lại vừa riêng tư. Phòng vệ sinh chung đặt cạnh cầu thang tiện lợi.

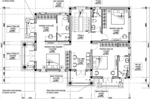
Tầng 2 là nơi nghỉ ngơi của cả gia đình có thư viện và ban công rộng thoáng, 2 bên là 3 phòng ngủ đầy đủ tiện nghi, sang trọng và hiện đại. Tất cả các phòng đều có ban công để đảm bảo sự thoáng sáng, hài hòa với thiên nhiên.

Tầng 3 là phòng thờ trang nghiêm, yên tĩnh. 1 phòng ngủ nhỏ dành cho khách mời. Sân chơi thư giãn và khu vực phơi đồ thoáng rộng.
Mẫu thiết kế biệt thự phong cách hiện đại có bể bơi

Thiết kế biệt thự sân vườn phong cách hiện đại có bể bơi này không chỉ ghi điểm về đường nét, hình khối kiến trúc khỏe khoắn mà còn được đánh giá cao nhờ sự kết hợp hài hòa với thiên nhiên. Từ đó mang đến khung cảnh yên bình, tiện nghi, giúp gia chủ có những phút giây nghỉ ngơi thoải mái.
Công trình được thiết kế theo phòng cách hiện đại, đơn giản nhưng không vì thế mà đơn điệu. Với tỷ lệ hình khối hoàn hảo kết hợp cùng không gian thiên nhiên và hồ bơi xanh mát ở trước nhà tạo nên tổng thể sang trọng, cân đối.
Mẫu thiết kế biệt thự nhà vườn đẹp

Mẫu biệt thự nhà vườn mini 1 tầng mái thái phong cách hiện đại sở hữu diện tích sân vườn lớn, thông thoáng. Những khoảng sân thoáng mát được liên kết với nhau qau những hòn non bộ, thảm cỏ xanh, ao sen,….mang đến không gian tiện nghi, thư giãn cho nhà ở.
Tận dụng lợi thế về mặt diện tích, gia chủ đã kết hợp thêm đền thờ, chòi cùng bộ bàn ghế để các thành viên trong gia đình có thể sum vầy, trò chuyện và thực hiện công việc thờ cúng.
Thiết kế nhà bền vững với các khối đua ra rộng. Từ thiết kế tường rào, cảnh quan cho đến hệ thống trụ cột, bậc tam cấp của biệt thự nhà vườn mini mái thái đều được tính toán một cách tỉ mỉ. Các đường gờ trang trí, vật liệu ốp tường cùng khối mái giật cấp tạo hiệu ứng đồng bộ cho tổng thể công trình.
Mẫu thiết kế biệt thự mini 2 tầng

Biệt thự mini 2 tầng được xây dựng với kiến trúc hiện đại. Từng hình khối, đường nét thiết kế khỏe khoắn. Toàn bộ hình khối và trụ cột của công trình được thiết kế với các trụ cột tròn.
Toàn bộ hệ thống lan can, trụ cột và hệ thống cửa kính khung nhôm đều được sơn màu trắng sáng. Kết hợp với sơn tường và hệ mái thái màu xám giúp mang đến tổng thể hài hòa, tạo cảm các dễ chịu, thoải mái.
Mẫu thiết kế biệt thự cổ điển Pháp

Căn biệt thự 3 tầng 1 tum được thiết kế đậm nét cổ điển nổi bật với gam màu trắng và những họa tiết phù điêu độc đáo điểm thêm những đường phào chỉ chạy ngang. Phong cách thiết kế kiểu Pháp mang lại sự sang trọng, đẳng cấp cho công trình. Biệt thự sử dụng các hệ trụ cột tròn chắc chắn, ở mỗi tầng đều có khu vực ban công thông thoáng

Tầng 1 là khoảng sân rộng phía trước mặt, phía trong là phòng khách thiết kế sang trọng, gọn gàng và trong cùng là phòng ăn có diện tích khá lớn. Tầng 1 còn có 1 phòng ngủ có thể làm phòng làm việc. Nhà được thiết kế thang máy hiện đại để tiện di chuyển.

Tầng 2 có 2 phòng ngủ hiện đại, tiện nghi với nhà vệ sinh khép kín. Hệ thống cửa sổ lớn giúp căn phòng luôn sáng, thoáng và đem lại sự thoải mái cho các thành viên. Bên cạnh đó, phòng sinh hoạt chung được bố trí ngay tại cầu thang là nơi cả gia đình sum họp.

Tầng 3 có 1 phòng ngủ lớn và 2 phòng ngủ nhỏ đầy đủ tiện nghi, mang lại sự thoải mái và riêng tư cho các thành viên trong gia đình.
Tầng tum bao gồm phòng thờ, phòng tập gym và khoảng sân thượng rộng rãi có thể làm nơi thư giãn hoặc trồng rau, đọc sách,…
Trên đây là toàn bộ thông tin về thiết kế biệt thự đẹp tại Hải Phòng. Hy vọng bạn đã tự tìm được cho mình phong cách thiết kế biệt thự đẹp cũng như đơn vị thiết kế uy tín nhất. Hãy liên hệ ngay với Kiến trúc HC khi có nhu cầu thiết kế biệt thự đẹp, chất lượng. Kiến trúc HC hân hạnh được đồng hành cùng bạn!
