Thiết kế nhà tại Thanh Hóa là một trong những dịch vụ nổi bật mà Công ty Kiến trúc HC đang cung cấp. Với đội ngũ nhân viên chuyên nghiệp, có nhiều năm kinh nghiệm, chúng tôi tự tin mang đến cho khách hàng các mẫu thiết kế nhà đẹp, ấn tượng nhất. Kiến trúc HC cũng là đối tác tin cậy của nhiều hộ gia đình, doanh nghiệp, công ty trên địa bàn tỉnh Thanh Hóa. Để hiểu rõ hơn về dịch vụ thiết kế nhà của chúng tôi, mời các bạn cùng theo dõi những thông tin trong bài viết dưới đây!
Giới thiệu về dịch vụ thiết kế nhà tại Thanh Hóa của Kiến trúc HC
Kiến trúc HC là đơn vị chuyên thiết kế và thi công dự án nhà ở, biệt thự,… Được thành lập từ năm 2013 đến nay HC Việt Nam đã nhận được sự phản hồi tích cực cũng như sự hài lòng của quý khách hàng. Chúng tôi tự tin thuộc top đầu đơn vị thiết kế nhà đẹp tại Thanh Hóa nói riêng, tại Việt Nam nói chung. Sở hữu đội ngũ kiến trúc sư trẻ, năng động, giàu nhiệt huyết cùng với đó là phương châm kiến tạo những ngôi nhà đẹp cho người dân Việt, chúng tôi luôn luôn mang tới sự hài lòng tuyệt đối cho quý khách hàng.
Các hạng mục thiết kế và thi công của Kiến trúc HC:
- Thiết kế kiến trúc dưới dạng 3D cho các công trình: nhà ở, văn phòng, sân vườn, biệt thự, nhà phố,…
- Thiết kế nội thất chuyên nghiệp, đúng tiến độ, hợp phong thủy gia chủ, giá cả hợp lý.
- Thiết kế ngoại thất tư vấn, thiết kế những Concept phối cảnh 3D cho các công trình: chung cư, văn phòng, biệt thự, liền kề, nhà phố,…
- Thi công các dự án về tu sửa kiến trúc, thay mới, quy hoạch mặt bằng đô thị với diện tích lớn nhỏ khác nhau.
Nếu có nhu cầu tư vấn thiết kế nhà ở, quý khách vui lòng liên hệ chúng tôi theo địa chỉ:
Kiến trúc HC Việt Nam
- Địa chỉ: Tòa nhà 11/A1 Khu Tân Hương, Đông Hương, TP. Thanh Hoá
- Phone: 0946267555 – 0979616043
- E-mail: kientruchc@gmail.com
- Website: https://www.kientruchc.com

Đội ngũ nhân viên Công ty Kiến trúc HC
Quy trình thiết kế nhà tại Kiến trúc HC
Dưới đây là quy trình triển khai dịch vụ thiết kế nhà tại Thanh Hóa của chúng tôi mà các bạn có thể tham khảo thêm:
Bước 1: Tiếp nhận thông tin và trao đổi với chủ đầu tư
Sau khi tiếp nhận thông tin từ phía khách hàng, chúng tôi sẽ tiến hành trao đổi và gặp gỡ trực tiếp quý khách. Việc trao đổi thông tin càng chi tiết sẽ giúp cả hai bên hiểu rõ được ý tưởng và yêu cầu, từ đó lên phương án thiết kế sao cho phù hợp.
Bước 2: Triển khai phương án thiết kế
Qua quá trình trao đổi thông tin chi tiết, chúng tôi sẽ khảo sát thực trạng công trình và triển khai các phương án thiết kế, bố trí mặt bằng theo từng khu vực mà chủ đầu tư yêu cầu.
Bước 3: Chỉnh sửa bản vẽ, ký kết hợp đồng
Đội ngũ kiến trúc sư của Kiến trúc HC sẽ gửi phương án thiết kế và bản vẽ để khách hàng xem xét. Nếu có bất cứ thay đổi nào, chúng tôi sẽ thực hiện chỉnh sửa theo yêu cầu của quý khách. Sauk hi chốt phương án cuối cùng, cả hai bên sẽ tiến hành ký kết hợp đồng.
Bước 4: Thiết kế 3D nội thất, ngoại thất
Đội ngũ kiến trúc sư của Kiến trúc HC sẽ tiến hành thiết kế bản vẽ ngoại thất, nội thất theo từng mặt bằng khu vực. Sau khi hoàn thành bản vẽ, chúng tôi sẽ gửi chủ đầu tư xem xét và thực hiện các điều chỉnh theo yêu cầu của khách hàng.
Bước 5: Triển khai hồ sơ chi tiết
Triển khai bản vẽ kỹ thuật và bản vẽ kết cấu theo phương án đã chốt với khách hàng. Lần lượt thực hiện cho từng phòng, từng mặt cắt, mặt đứng theo các hướng nhìn khác nhau.
Bước 6: Phê duyệt và bàn giao hồ sơ
Hồ sơ kỹ thuật sau khi đã điều chỉnh theo ý kiến với khách hàng sẽ tiến hành in ấn và đóng tập với chữ ký và dấu của công ty để bàn giao cho khách hàng. Chủ đầu tư sẽ dùng bản hồ sơ kỹ thuật này để giao cho đơn vị thi công nhà ở.
Bảng báo giá thiết kế nhà của Kiến trúc HC
Dưới đây là cập nhật bảng báo giá thiết kế nhà tại Thanh Hóa mà các bạn có thể tham khảo
| Thiết kế nhà hiện đại (gói thông dụng) | Chưa có nội thất 3D: 100.000 đồng/m2 – 120.000 đồng/m2 |
| Có nội thất 3D: 160.000 đồng/m2 – 180.000 đồng/m2 | |
| Thiết kế nhà mái thái | Chưa có nội thất 3D: 110.000 đồng/m2 – 130.000 đồng/m2 |
| Có nội thất 3D: 160.000 đồng/m2 – 180.000 đồng/m2 | |
| Thiết kế nhà tân cổ điển | Chưa có nội thất 3D: 130.000 đồng/m2 – 150.000 đồng/m2 |
| Có nội thất 3D: 180.000 đồng/m2 – 200.000 đồng/m2 |
Lưu ý: Bảng giá thiết kế nhà trên của chúng tôi chỉ mang tính chất tham khảo. Để được báo giá chi tiết nhất, quý khách vui lòng liên hệ: 0946267555 – 0979616043.
Thành phần hồ sơ thiết kế nhà bao gồm
HỒ SƠ THIẾT KẾ THI CÔNG KIẾN TRÚC TRỌN GÓI
Hồ sơ thiết kế kỹ thuật kiến trúc bao gồm:
A – Hồ sơ kỹ thuật phần kiến trúc gồm:
- Mặt bằng chi tiết các tầng
- Mặt cắt chi tiết các tầng
- Mặt cắt chi tiết các trục
- Mặt đứng chi tiết nếu có
- Mặt đứng bên chi tiết
- Mặt bằng, mặt cắt chi tiết cầu thang
- Mặt bằng, mặt cắt chi tiết các khu WC
- Mặt bằng, mặt cắt chi tiết hộp kỹ thuật
- Các chi tiết kiến trúc
- Chi tiết các phần cửa
- Chi tiết kiến trúc ban công
- Chi tiết kiến trúc cổng hàng rào
- Bảng thống kê cửa
B – Hồ sơ kỹ thuật phần kết cấu bao gồm:
- Mặt bằng định vị lưới cột
- Mặt bằng móng, dầm móng
- Chi tiết mặt cắt móng
- Cấu tạo bể nước, bể phốt
- Mặt bằng cấu kiện các sàn
- Mặt bằng bố trí thép các sàn
- Mặt bằng cấu kiện mái
- Mặt bằng bố trí thép mái
- Chi tiết kết cấu cầu thang
- Chi tiết kết cấu, cấu tạo các dầm, lanh tô
- Chi tiết kết cấu các cột
- Bảng thống kê thép
C – Hồ sơ thiết kế đường điện gồm:
- Sơ đồ điện
- Mặt bằng bố trí điện các tầng
- Hệ thống Aptomat chi tiết đến các tầng, phòng
- Mặt bằng thu sét tầng mái
- Chi tiết lắp đặt các thiết bị, lắp đặt đường điện, Tivi, Internet, Điện thoại…
- Chi tiết hệ thống điều hòa treo tường
D – Hồ sơ thiết kế đường nước gồm:
- Mặt bằng bố trí cấp thoát nước các tầng
- Sơ đồ không gian cấp thoát nước
- Chi tiết cấp thoát nước các khu WC, bếp, phòng giặt
- Chi tiết đường ống cấp thoát nước
- Chi tiết bố trí cấp thoát nước các công trình ngầm
HỒ SƠ THIẾT KẾ THI CÔNG NỘI THẤT TRỌN GÓI
Hồ sơ thiết kế kỹ thuật nội thất bao gồm:
A – Hồ sơ kỹ thuật phần nội thất, bao gồm:
- Mặt bằng bố trí đồ nội thất chi tiết các tầng
- Mặt đứng chi tiết các diện tường
- Mặt cắt, mặt bằng, chi tiết cầu thang
- Mặt bằng, mặt cắt, chi tiết các khu vệ sinh
- Mặt bằng, mặt cắt, chi tiết hộp kỹ thuật
- Chi tiết kiến trúc các cửa (cửa đi, cửa sổ, vệ sinh… nếu có)
B – Hồ sơ kỹ thuật phần thiết bị nội thất, bao gồm:
- Mặt bằng định vị đồ nội thất
- Bản vẽ kỹ thuật chi tiết đồ nội thất
C – Hồ sơ thiết kế đường điện, bao gồm:
- Sơ đồ điện theo nội thất
- Mặt bằng bố trí điện các tầng
- Mặt bằng bố trí và định vị các thiết bị điện
- Chi tiết các đường cáp: Điện thoại, TV, Internet …
- Chi tiết hệ thống điều hòa không khí
D – Hồ sơ thiết kế đường nước, bao gồm
- Mặt bằng bố trí cấp thoát nước các tầng
- Sơ đồ không gian cấp thoát nước
- Chi tiết cấp thoát nước các khu vệ sinh, bếp, phòng giặt
- Chi tiết các đường ống cấp thoát nước

Hồ sơ thiết kế nhà ở
Tại sao thiết kế nhà tại Thanh Hóa nên chọn Kiến trúc HC?
Sở dĩ dịch vụ thiết kế nhà đẹp của Kiến trúc HC được đông đảo khách hàng lựa chọn nhờ những lý do sau:
Đội ngũ nhân viên có kinh nghiệm, chuyên môn cao
Đội ngũ nhân viên của Kiến trúc HC là những kiến trúc sư, kỹ sư có kinh nghiệm nhiều năm, tay nghề cao, giúp khách hàng có được những bản vẽ thiết kế nhà đẹp, ấn tượng nhất.
Thiết kế nhà mang phong cách riêng
Kiến trúc HC cam kết mang đến cho khách hàng những mẫu thiết kế nhà mang phong cách riêng, khác biệt và không trùng lặp. Các bạn chỉ cần đưa ra yêu cầu, chúng tôi sẽ biến mong muốn và những ý tưởng của bạn trở thành hiện thực. Và quan trọng hơn, không gian sống của bạn sẽ mang dấu ấn cá nhân, riêng biệt và độc đáo.
Tối ưu chi phí
Dịch vụ thiết kế nhà của chúng tôi tối ưu và tiết kiệm chi phí cho quý khách hàng. Các sản phẩm của chúng tôi được trau chuốt kỹ dù là chi tiết nhỏ, đảm bảo làm hài lòng mọi quý khách. Đồng thời hạn chế phí phát sinh và sửa chữa về sau.
Kinh nghiệm thuê công ty thiết kế nhà tại Thanh Hóa uy tín
Tại Thanh Hóa bạn sẽ không khó để tìm được 1 đơn vị thiết kế và thi công nhà ở. Nhưng để tìm được một địa chỉ tin cậy đảm bảo cả về chất lượng và giá cả bạn nên lựa chọn theo 4 tiêu chí quan trọng như sau:
Không nên chọn đơn vị nhận thầu với giá quá rẻ
Đứng trước lời quảng cáo của 1 công ty thiết kế thầu với mức giá quá rẻ so với thị trường chung thì bạn hãy dừng lại và xem xét, tìm hiểu thật kỹ. Nhà ở là chốn an cư – là tài sản vô cùng quý giá của đời người. Do đó bạn không nên quá “ham rẻ” để rồi “tiền mất tật mang”.
Ưu tiên lựa chọn những công ty vừa thiết kế vừa thi công nhà luôn
Hiện tại thị trường xây dựng Thanh Hóa những công ty cung cấp cả dịch vụ thiết kế và thi công nhà ở không nhiều. Đơn giản vì khoản tiền thiết kế cũng khá cao rồi, nếu làm chung như thế sẽ khiến họ bị thiệt thòi đôi chút mà đội giá tiền thiết kế lên cao hơn. Tuy nhiên cũng có một số công ty thiết kế nhà đẹp có những chương trình khuyến mãi tri ân khách hàng và bạn có thể tìm hiểu và tận dụng cơ hội này.
Nên ưu tiên lựa chọn đơn vị nhận cả thiết kế và thi công nhà đẹp
Việc chọn đơn vị vừa thiết kế vừa thi công sẽ mang tới cho bạn sự đồng nhất. Ví dụ bạn chọn đơn vị này thiết kế và 1 đơn vị khác thi công chắc chắn trong quá trình hoàn thiện sẽ xảy ra mâu thuẫn. Ngoài ra việc nghiệm thu công trình cuối cùng cũng khó khăn. Do đó, Kiến Trúc HC khuyên bạn hãy thống nhất vào 1 đơn vị.
Không nên chọn công ty thiết kế nhà quá lớn
Đây là điều bạn cần chú ý với khi chọn công ty thiết kế quá lớn họ thường bao thầu rất nhiều công trình khác nhau trên địa bàn cũng như trên cả nước. Chính vì lẽ đó mà việc quản lý đội ngũ thi công sẽ có nhiều bất cập. Thường bạn nên lựa chọn nhà thầu có thể đáp ứng được cả phần vật tư, nhân công,… và bạn chỉ cần lo thêm phần hoàn thiện.
Nên thuê giám sát riêng nếu có điều kiện
Nếu bạn không có kiến thức về xây dựng thì tốt hơn cả bạn nên thuê giám sát tuần 1 hoặc 2 lần đến kiểm định những phần quan trọng như móng, đổ sàn.
Tóm lại bạn chỉ cần lựa chọn đơn vị thiết kế thầu thi công xây dựng có kinh nghiệm thiết kế vừa đảm bảo được quá trình cũng như chất lượng thi công.
Tham khảo các mẫu thiết kế nhà tại Thanh Hóa
Dưới đây là một số mẫu thiết kế nhà đẹp tại Thanh Hóa mà chúng tôi đã thực hiện:
Mẫu thiết kế nhà phố kết hợp kinh doanh

Thiết kế nhà ở kết hợp mô hình kinh doanh cafe sân vườn độc đáo
Đây là mô hình nhà ở kết hợp kinh doanh cafe sân vườn phổ biến hiện nay. Nội thất trong nhà được bố trí đơn giản nhưng đầy đủ tiện nghi. Tầng dưới với diện tích sân vườn lớn được tận dụng làm quán cafe. Các tầng trên là nơi sinh hoạt của các thành viên trong gia đình.

Tầng 1 và tầng 2 của thiết kế nhà phố 4 tầng được gia chủ tận dụng để kinh doanh quán trà sữa
Vì mặt tiền diện tích không quá rộng do đó đội ngũ kiến trúc sư của chúng tôi đã tư vấn gia chủ thiết kế nhà ống đẹp 4 tầng 1 tum theo phong cách hiện đại. Mặt bằng các tầng được bố trí với không gian sinh hoạt tiện nghi. Việc bố trí thêm tầng tum giúp tăng diện tích sử dụng. Tầng 1 và tầng 2 của ngôi nhà được gia chủ tận dụng để kinh doanh mô hình trà sữa.
Mẫu thiết kế nhà cấp 4 3 phòng ngủ 1 phòng thờ

Thiết kế nhà cấp 4 3 phòng ngủ 1 phòng thờ theo kiểu truyền thống
Ngôi nhà cấp 4 này được thiết kế theo phong cách truyền thống, mang đậm dấu ấn của vùng nông thôn Việt Nam. Gam màu chủ đạo là màu nâu gỗ, hệ mái thái giật cấp vô cùng hiện đại. Khoảng sân vườn trước nhà vô cùng rộng rãi.

Bản vẽ công năng nhà cấp 4 3 phòng ngủ 1 phòng thờ
Mặt bằng công năng nhà cấp 4 3 phòng ngủ 1 phòng thờ được bố trí khoa học, đảm bảo tính thẩm mỹ và công năng sử dụng. Phòng khách gần cửa chính, tiếp đến và khu vực phòng thờ sau kệ tivi. Đặc biệt, không gian phòng khách cũng chia ngôi nhà thành 2 phần. Một bên là phòng bếp, phòng ngủ master. Bên còn lại là hai phòng ngủ được bố trí cạnh nhau.
Thiết kế nhà phố có gara

Gara ô tô được thiết kế tách biệt để tận dụng tối đa diện tích sử dụng bên trong nhà
Thiết kế nhà ống lệch tầng vô cùng ấn tượng độc đáo tạo không gian cho khu vực ban công thư giãn. Sự kết hợp giữa đá màu gỗ cùng cửa kính mang lại sự sang trọng, tinh tế cho không gian ngôi nhà. Gara ô tô được bố trí trước cửa nhà cạnh lối ra vào giúp tối ưu diện tích sử dụng bên trong.
Mẫu thiết kế nhà ống 2 tầng 1 tum

Thiết kế nhà ống 2 tầng 1 tum với diện tích 100m2
Mẫu thiết kế nhà phố 2 tầng 1 tum này vô cùng hiện đại, sang trọng với điểm nhấn là các thanh cửa gỗ ấn tượng. Đặc biệt, không gian tầng tum được bố trí với mái hiên rộng giúp gia chủ có thể bố trí thêm nhiều cây xanh. Thiết kế nhà mái bằng không chỉ tiết kiệm chi phí xây dựng mà còn giúp gia chủ có thể tận dụng diện tích để làm khu vực trồng cây, phơi quần áo.
Thiết kế nhà phố 3 tầng

Góc nghiêng nhà phố 3 tầng diện tích 7x12m
Thiết kế nhà phố 3 tầng mái bằng diện tích 7x12m phong cách hiện đại nhưng tạo điểm nhấn bởi kiến trúc mái Nhật vô cùng độc đáo. Mặt tiền ngôi nhà với các hình khối vuông vức, khỏe khoắn. Nhà mái Nhật được ưa chuộng bởi khả năng chống nóng và làm mát cho không gian.

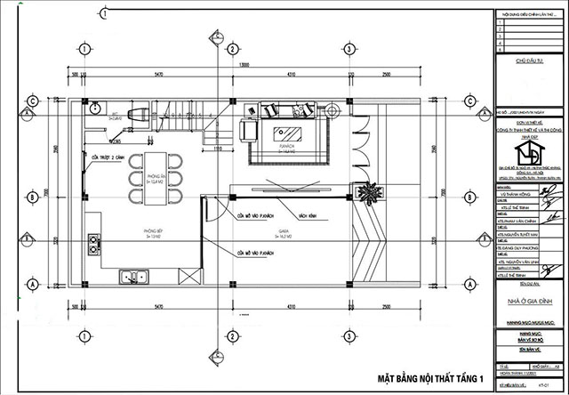
Bản vẽ mặt bằng tầng 1
Mặt bằng tầng 1 được bố trí gồm phòng khách và khu vực phòng ăn. Thiết kế tủ bếp chữ L giúp tối ưu diện tích sử dụng. Khu vực sảnh lớn dẫn vào phòng khách. Tầng 1 còn được bố trí thêm khu vực WC thông thoáng, rộng rãi.

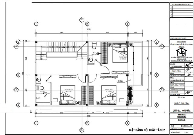
Bản vẽ mặt bằng tầng 2
Mặt bằng công năng sử dụng tầng 2 gồm 3 phòng ngủ thông thoáng tận dụng ánh sáng tự nhiên từ khu vực ban công. 1 nhà vệ sinh chung được thiết kế riêng đảm bảo sự riêng tư cho các thành viên trong gia đình.

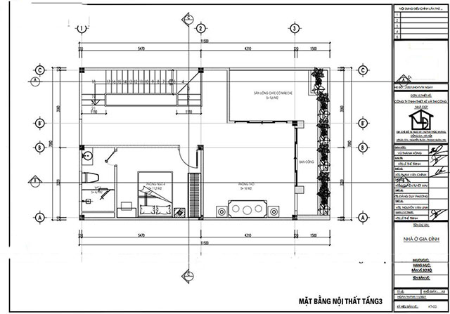
Bản vẽ mặt bằng tầng 3
Tầng 3 được bố trí sân phơi ngoài trời cùng phòng thờ. Các khu vực được bố trí khoa hợp lý, đảm bảo tính phong thủy, mang lại không gian sống tiện nghi cho gia đình.
Thiết kế nhà phố 4 tầng

Thiết kế nhà phố 4 tầng không gian xanh mát
Điểm nhấn của mẫu nhà phố 4 tầng này là khu vực mặt tiền tràn ngập cây xanh. Cổng vào được thiết kế dạng lá sách giúp tận dụng ánh sáng và gió tự nhiên vào ngôi nhà. Mặt tiền tầng 1 và 2 được ốp đá vô cùng sang trọng. Khu vực tầng 3 sử dụng lam gỗ để trang trí. Ở mỗi ban công đều được thiết kế bồn cây xanh, cùng với hệ thống cửa kính thông thoáng.

Thiết kế phòng ngủ cho bố mẹ hiện đại với không gian xanh
Mẫu thiết kế phòng ngủ master với không gian xanh thư thái, nhẹ nhàng. Bên cạnh việc bố trí đầy đủ công năng, phòng ngủ này còn được bài trí thêm bộ bàn ghế uống trà vô cùng sang trọng. Đồ nội thất trong phòng sử dụng gỗ sồi tự nhiên sơn trắng.

Thiết kế phòng ngủ cho bé với nhiều gam màu
Mẫu phòng ngủ này phù hợp cho cả bé trai và bé gái. Các gam màu được sử dụng và bố trí hài hòa. Góc học tập đơn giản nhưng độc đáo với bàn gỗ khung chữ A. Ở góc trong cùng bên phải là những chiếc ngăn kéo lưu trữ đồ dùng được thiết kế vô cùng khéo léo, ấn tượng.

Thiết kế nhà tắm đơn giản phong cách hiện đại
Nhà tắm được thiết kế tối giản theo phong cách hiện đại với gam màu đen – trắng chủ đạo. Mặc dù diện tích không quá lớn, tuy nhiên phòng tắm vẫn đảm bảo công năng sử dụng với đầy đủ các thiết bị như: lavabo, bồn tắm, kệ đựng dầu gội sữa tắm,….
Trên đây là những thông tin cơ bản về dịch vụ thiết kế nhà tại Thanh Hóa của. Nếu có nhu cầu tư vấn thiết kế, xây nhà trọn gói Thanh Hóa, đừng quên liên hệ với Kiến trúc HC theo hotline: 0946267555 – 0979616043 để được tư vấn, hỗ trợ.
