Hiện nay, việc sở hữu nhà ống đẹp 3 tầng với mặt tiền 4m là mong ước của rất nhiều gia đình. Thiết kế này vừa mang lại sự thoải mái, hiện đại mà vẫn đảm bảo tiện nghi sử dụng. Trong bài viết dưới đây, chúng tôi sẽ giới thiệu đến các bạn một số mẫu thiết kế nhà ống 3 tầng mặt tiền 4m. Mời các bạn cùng tham khảo chi tiết!
Mẫu thiết kế nhà ống đẹp 3 tầng mặt tiền 4m hiện đại
Dưới đây là một số mẫu thiết kế nhà ống đẹp 3 tầng với mặt tiền rộng 4m được thiết kế theo phong cách hiện đại mà các bạn có thể tham khảo:

Thiết kế nhà ống đẹp, sang trọng với màu trắng kết hợp nâu vô cùng hiện đại

Thiết kế ngoại thất được tối giản đến từng chi tiết. Chất liệu kính được sử dụng mang lại sự ấn tượng và phong cách hiện đại

Thiết kế nhà ống 3 tầng mặt tiền diện tích 4m này được khéo léo lồng ghép cả yếu tố thiên nhiên mang lại không khí trong lành

Mẫu thiết kế nhà ống này sử dụng mặt tiền tầng trệt để làm điểm nhấn vô cùng ấn tượng
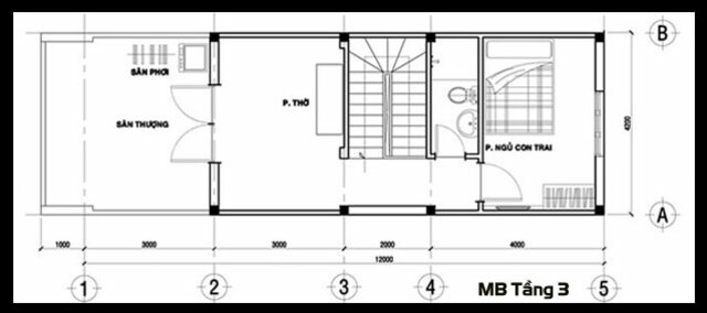
Bản vẽ thiết kế mẫu nhà ống đẹp 3 tầng mặt tiền 4m
Hiện nay, mẫu nhà ống đẹp 3 tầng với mặt tiền 4m được nhiều gia đình ưa chuộng. Trong bản vẽ thiết kế này, kiến trúc sư đã thiết kế giếng trời ở giữa giúp ngôi nhà tận dụng được ánh sáng tự nhiên.
Phía trước và sau của ngôi nhà sẽ có khoảng sân nhỏ giúp không gian sạch sẽ, thông thoáng hơn. Mỗi tầng sẽ có những chức năng riêng.
Tầng 1: Phòng bếp, khách + phòng ăn và nhà vệ sinh chung.
- Thiết kế tầng trệt với không gian mở giữa các phòng sinh hoạt nhằm tiết kiệm tối đa diện tích.
- Không gian các phòng được phân chia hợp lý, đảm bảo nhu cầu sử dụng.

Tầng 2: phòng ngủ bố mẹ, phòng ngủ con gái + nhà vệ sinh
- Không gian tầng hai là nơi nghỉ ngơi
- Các phòng ngủ được thiết kế cửa sổ thông thoáng.

Tầng 3: Phòng ngủ con trai, phòng thờ
- Khu vực phòng thờ được bố trí gắn liền với sân thượng.
- Phòng ngủ con trai có nội thất tiện nghi, đầy đủ

Thiết kế nội thất nhà ống 3 tầng mặt tiền 4m
Dưới đây là một số mẫu thiết kế nội thất nhà ống 3 tầng mặt tiền 4m mà các bạn có thể tham khảo:
Phòng khách mẫu nhà ống đẹp 3 tầng 4m trẻ trung năng động

Không gian phòng khách rộng rãi khi tận dụng tối đa nguồn ánh sáng từ bên ngoài. Bức tường màu vàng tạo điểm nhấn ấn tượng hơn.

Kệ tivi treo tường kết hợp cùng kệ lưu trữ giúp không gian đơn giản, tiết kiệm tối đa diện tích
Nhà bếp mẫu nhà ống đẹp 3 tầng 4m thoáng mát với không gian xanh

Không gian bếp với màu sắc tương đồng tạo nên tổng thể hoàn chỉnh

Tủ bếp công nghiệp mang lại sự hiện đại, trẻ trung, gọn gàng và tiện nghi. Đặc biệt, bức tường màu xanh giúp khu vực ăn uống tạo điểm nhấn độc đáo hơn.
Thiết kế phòng ngủ thư giãn yên bình

Phòng ngủ master sang trọng với gam màu cam vô cùng nổi bật

Phòng ngủ dành cho bé gái với gam màu hồng chủ đạo mang lại sự dễ thương và ấm áp

Màu vàng tinh tế giúp không gian phòng ngủ tươi mới và ấm áp hơn. Thiết kế cửa sổ giúp gia chủ tận dụng tối đa ánh sáng tự nhiên
Tham khảo thêm 1 số mẫu nhà ống 3 tầng mặt tiền 4m đẹp, hiện đại
Dưới đây là một số mẫu nhà ống 3 tầng với mặt tiền 4m mà các bạn có thể tham khảo thêm:

Mẫu thiết kế nhà ống 3 tẩng này theo phong cách hiện đại với gam màu trắng kết hợp cùng màu nâu vô cùng sang trọng

Thiết kế nhà 3 tầng độc đáo với hệ thống vách cửa tạo điểm nhấn ấn tượng

Nếu đang tìm kiếm ý tưởng thiết kế nhà ống 3 tầng mặt tiền 4m thì các bạn có thể tham khảo mẫu thiết kế trên của chúng tôi

Sự kết hợp hài hòa của các gam màu mang lại tổng thể thiết kế nhà phố 3 tầng vô cùng sang trọng, ấn tượng

Gam màu nâu sang trọng giúp thiết kế nhà 3 tầng với thiết kế tân cổ điển này mang lại vẻ đẹp ấn tượng
Trên đây là tổng hợp một số mẫu thiết kế nhà ống 3 tầng mặt tiền 4m đẹp, sang trọng nhất hiện nay. Hy vọng thông qua bài viết của chúng tôi các bạn sẽ có thêm nhiều ý tưởng cho không gian gia đình.
Xem thêm:
Thiết kế ngoại thất nhà phố, nhà ống đẹp, ấn tượng
