Bạn đang muốn xây nhà có phần mặt tiền rộng 9m? Tuy nhiên bạn chưa tìm được mẫu thiết kế ưng ý và đẹp nhất? Vậy hãy tham khảo ngay một số mẫu thiết kế nhà mặt tiền 9m đẹp, hiện đại, sang trọng, đáng để xây nhất chúng tôi chia sẻ trong bài viết sau đây.
Xem thêm: Mẫu thiết kế nhà 2 tầng mặt tiền 8m đẹp, được săn tìm nhiều
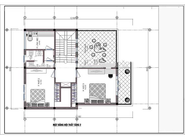
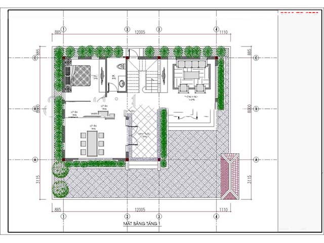
1. Bản vẽ thiết kế nhà mặt tiền 9m 2 tầng mái lệch hiện đại
Đây là mẫu nhà có phần mái lệch độc đáo. Nếu là người yêu thích phong cách hiện đại, trẻ trung thì kiểu nhà này rất phù hợp với bạn. Kiến trúc mái lệch giúp tăng thêm sự độc đáo, cá tính cho ngôi nhà. Phần ngoại thất sẽ được thiết kế gồm tường bao chát phẳng, sơn trắng. Trên nền đó sẽ thiết kế thêm hệ thống đá ốp chân tường độc đáo. Cùng với đó là khu vực ốp gạch thẻ màu ghi ấn tượng. Hệ thống cửa và lan can bằng kính giúp tăng thêm sự hiện đại, năng động cho ngôi nhà.

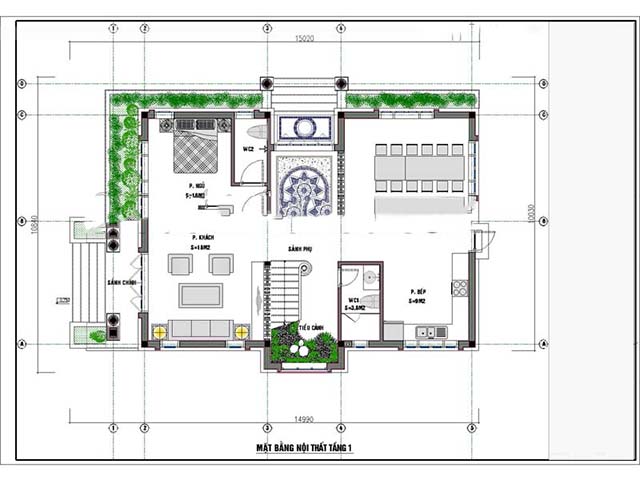
Mặt sàn rộng 90m2 ở tầng 1 được bố trí công năng hợp lý, đầy đủ cho sinh hoạt chung của cả gia đình. Các phòng gồm: 1 phòng khách, 1 phòng bếp, 1 phòng ăn, 1 phòng ngủ, 1 WC và 1 phòng giặt.

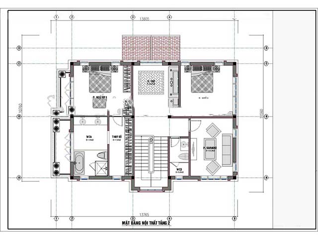
Với không gian tầng 2 sẽ được thiết kế gồm 2 phòng ngủ, 1 WC, 1 phòng làm việc và 1 sân nhỏ.

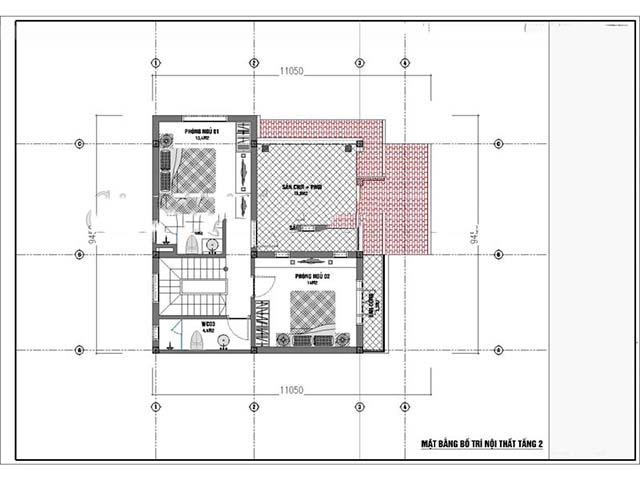
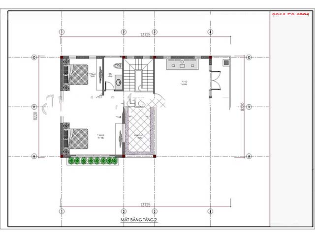
2. Bản vẽ thiết kế nhà mặt tiền 9m sâu 100m 2 tầng mái ngói
Đây là một mẫu nhà có thiết kế ấn tượng, ngoại thất đẹp, xa hoa. Các khối kiến trúc được tạo hình độc đáo, đơn giản. Tường bao chát phẳng, sơn kẻ trắng sang trọng. Khu vực tầng 1 có điểm nhấn là sự kết hợp đơn giản của đá ốp tối màu phần chân tường.

Hệ thống cột và tường bao gạch ốp bằng 2 loại gạch thẻ khác nhau. Một loại gạch thẻ dùng để trang trí, còn một loại giúp tại điểm nhấn cho không gian.
Mặt bằng tầng 1 bản vẽ thiết kế nhà mặt tiền 9m sâu 10m 2 tầng đẹp.

Không gian tầng 2 của ngôi nhà được kiến trúc sư lấp đầy với những công năng như sau: 2 phòng ngủ, 1 sân chơi kết hợp sân phơi và 2 WC.

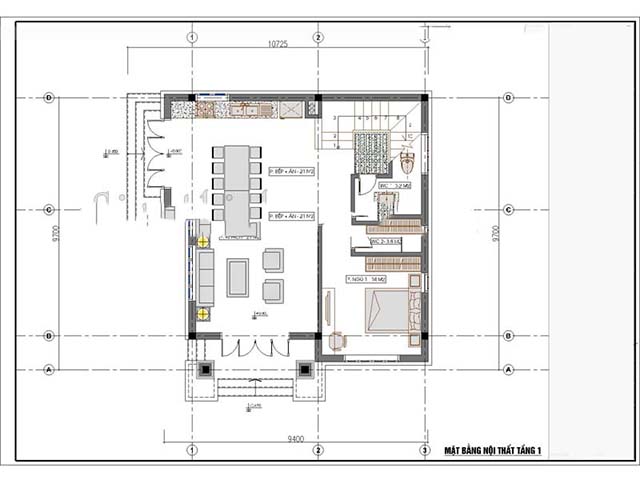
3. Bản vẽ thiết kế nhà mặt tiền 9m 2 tầng 3 phòng ngủ mái chéo
Kiểu nhà này có phần thiết kế ngoại thất độc đáo đơn giản. Các mảng tường được tạo hình nhẹ nhàng cùng các chi tiết như đá ốp chân tường, gạch thẻ trang trí, cửa – đầu hồi đều thể hiện phong cách hiện đại, đơn giản nhưng xa hoa của công trình.

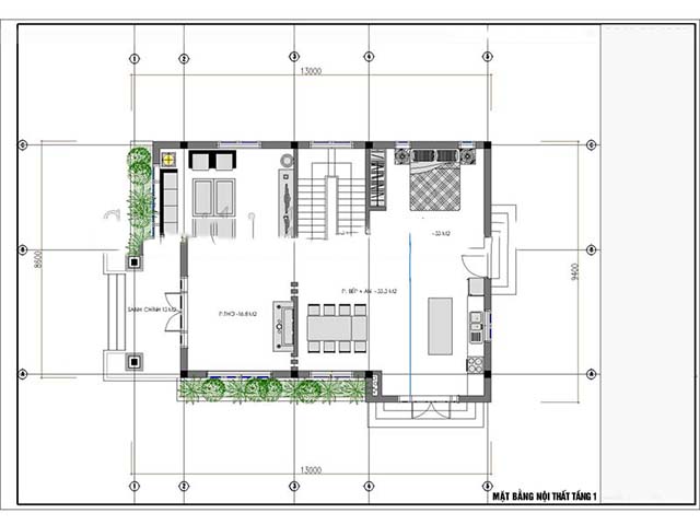
Không gian tầng 1 được bố trí với những công năng đơn giản nhưng tiện nghi. Cụ thể, những công năng sử dụng được sắp xếp tại đây bao gồm: 1 phòng khách, 1 phòng bếp + ăn, 1 phòng ngủ và 2 WC.

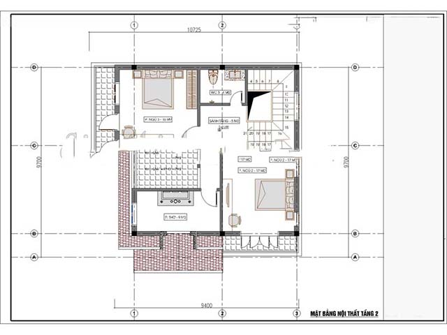
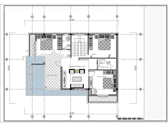
Tại mẫu thiết kế này, kiến trúc sư đã bố trí 3 phòng ngủ. 3 Phòng ngủ của của ngôi nhà này được sắp xếp tại 2 mặt bằng (tầng 1 và tầng 2). Không gian tầng 2 được sử dụng cho những công năng như sau: 2 phòng ngủ, 1 phòng thờ, và 1 WC.

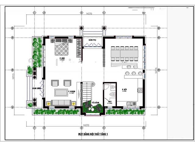
4. Bản vẽ thiết kế nhà mặt tiền 9m 2 tầng phong cách tân cổ điển
Đây là mẫu nhà thiết kế theo phong cách tân cổ điển, hệ thống tường ngoại thất được chát phẳng tạo thành đường chỉ ngang chìm, tuy đơn giản nhưng không đơn điệu. Ngoài ra, sắc trắng của tường bao giúp tăng thêm phần trang nhã, sang trọng. Thêm vào đó là các cột trụ tròn giúp tăng thêm đặc trưng cho kiểu nhà này.

Không gian tầng 1 của công trình này được bố trí với những công năng vô cùng tiện ích. Cụ thể, đó là 1 phòng bếp + ăn, 1 phòng khách, 1 sảnh, 1 phòng ngủ,2 WC và 1 tiểu cảnh.

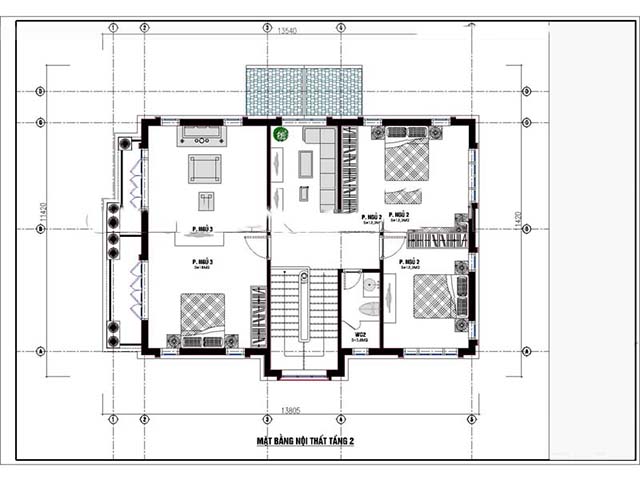
Kế đến là mặt bằng nội thất tầng 2 của công trình. Tại đây, kiến trúc sư sắp xếp những công năng như sau: 2 phòng ngủ, 1 phòng thờ, 1 phòng Karaoke, 1 phòng thay đồ và 2 WC.

5. Bản vẽ thiết kế nhà mặt tiền 9m 2 tầng diện tích 105m2
Mẫu thiết kế này theo kiểu nhà hiện đại mái dốc. Tại đây, kiến trúc sư đã sử dụng các gam màu lạnh, nó khiến công trình không qua nổi bật nhưng vẫn xinh đẹp. Mái ngói thiết kế đồng bộ với cổng tạo nên vẻ đẹp tổng thể, thống nhất cho công trình.

Tại không gian 105m2 này, kiến trúc sư đã bố trí những công năng thiết yếu nhất cho cuộc sống. Cụ thể, mặt bằng nội thất tầng 1 bao gồm: 1 phòng khách, 1 phòng thờ, 1 phòng bếp + ăn và 1 phòng ngủ.

Kế đến là không gian tầng 2 của ngôi nhà. Tại đây, kiến trúc sư đã sử dụng diện tích 105m2 vào việc bố trí những công năng như sau: 3 phòng ngủ, 1 phòng sinh hoạt chung, 2 WC và 1 sân chơi – sân phơi.

6. Bản vẽ thiết kế nhà mặt tiền 9m sâu 12m 2 tầng phong cách hiện đại
Kiểu nhà này được thiết kế theo hình chữ L, giúp khắc phục thực trạng lô đất không mấy hoàn hảo. Tại đây, kiến trúc sư đã tạo hình thái kiến trúc độc đáo, hiện đại kết hợp cùng màu sắc tinh tế. Thêm vào đó là hệ thống cửa kính và gỗ khiến ngôi nhà thêm phần sang trọng, lịch sự và trẻ trung.

Không gian 80m2 tầng 1 được tận dụng để sắp xếp những công năng vô cùng cần thiết cho cuộc sống gia đình. Đó là sảnh cùng 1 phòng khách, 1 phòng bếp + ăn, 1 phòng ngủ, 1 WC.

Không gian tầng 2 của công trình được phân chia cho những công năng vô cùng phù hợp. Cụ thể: 1 sảnh tầng, 2 phòng ngủ, 1 WC và 1 phòng thờ.

7. Bản vẽ thiết kế nhà mặt tiền 9m 2 tầng phong cách bán cổ điển
Với mẫu nhà này, phong cách tân cổ điển được áp dụng triệt để trong từng chi tiết. Từ màu sắc đến tạo hình, đường nét đều có sự liên kết.

Mặt bằng tầng 1 bản vẽ thiết kế nhà mặt tiền 9m 2 tầng phong cách tân cổ diện tích 105m2

Mặt bằng tầng 2 bản vẽ thiết kế nhà mặt tiền 9m 2 tầng phong cách tân cổ diện tích 105m2

Trên đây chúng tôi đã chia sẻ đến bạn một số mẫu bản vẽ thiết kế nhà mặt tiền 9m đẹp và đáng xây nhất. Hy vọng thông tin trong bài sẽ hữu ích với bạn.
