Với kinh nghiệm nhiều năm trong lĩnh vực thiết kế, xây dựng, Kiến trúc HC là một trong những đơn vị hàng đầu trong lĩnh vực thiết kế biệt thự tại Nam Định. Chúng tôi đã thực hiện hàng trăm công trình lớn nhỏ với đa dạng phong cách kiến trúc từ tân cổ điển, cổ điển cho đến hiện đại, biệt thự nhà vườn,…..và nhận được sự yêu thích và tin tưởng từ các chủ đầu tư tại Nam Định. Cùng theo dõi bài viết dưới đây để tham khảo các mẫu biệt thự đẹp, đẳng cấp do đội ngũ kiến trúc sư Kiến trúc HC thiết kế và kiến tạo.
Giới thiệu dịch vụ thiết kế biệt thự tại Nam Định
Nhu cầu xây dựng những căn biệt thự ở Nam Định ngày càng tăng cao nên cũng xuất hiện nhiều công ty cung cấp dịch vụ thiết kế và xây dựng nhà biệt thự. Nhưng việc lựa chọn được một công ty thiết kế đẹp, chất lượng, giá cả hợp lý không phải là dễ.
Cần phải chọn công ty có đội ngũ kiến trúc sư có chuyên môn cao, phong cách đa dạng. Điều này sẽ giúp bạn có một bản thiết kế vừa độc đáo, phong cách lại phù hợp với ý thích và nhu cầu.
Kiến trúc HC Việt Nam là một công ty có bề dày hoạt động hoạt động trong lĩnh vực xây dựng. Chúng tôi tự hào là đơn vị thiết kế biệt thự uy tín, chuyên nghiệp tại tỉnh Nam Định. Cam kết đem đến cho khách hàng những bản thiết kế chuẩn và độc đáo đáp ứng được yêu cầu của người sử dụng.

Đội ngũ kiến trúc sư của Kiến trúc HC
Nếu có nhu cầu tư vấn, thiết kế, thi công biệt thự trọn gói quý khách vui lòng liên hệ:
Kiến trúc HC Việt Nam
Địa chỉ: 70 Hùng Vương, Phường Vị Xuyên, TP. Nam Định
Phone: 0946267555 – 0979616043
E-mail: kientruchc@gmail.com
Website: https://www.kientruchc.com
Quy trình thiết kế biệt thự tại Nam Định
Để có một bản thiết kế đúng chuẩn, thẩm mỹ cần được thực hiện theo quy trình bao gồm các bước:
Khảo sát địa hình và xác định yêu cầu, sở thích của chủ nhà
Khi nhận được dự án thiết kế biệt thự cho khách hàng, việc đầu tiên cần làm là đến khảo sát địa hình khu vực dự án. Cùng với đó là cần gặp gỡ trao đổi với khách hàng về những nhu cầu và ý tưởng của chủ nhà. Cần phải đo đạc tỉ mỉ, chính xác để làm căn cứ đưa ra một bản thiết kế chuẩn xác.
Lên bản vẽ thiết kế
Sau khi đã có số liệu chính xác cùng với những yêu cầu, sở thích của khách hàng thì kiến trúc sư cần lên bản vẽ thiết kế cho căn biệt thự. Bản vẽ cần thể hiện được cách kết hợp tối ưu giữa yêu cầu của gia chủ và những kiến thức chuyên môn của khách hàng.
Lựa chọn vật liệu phù hợp với thiết kế và chi phí của căn biệt thự
Khi đã có bản vẽ cần phải lựa chọn những vật liệu xây dựng vừa đảm bảo chất lượng vừa phù hợp với thiết kế đã lên của căn biệt thự. Hơn thế nữa những vật liệu đó cũng phải nằm trong khả năng chi trả, dự toán chi phí của gia chủ.
Giám sát tiến độ thi công của căn biệt thự
Việc giám sát để đảm bảo cho công trình được thi công đúng tiến độ, đúng yêu cầu kỹ thuật là một trong những trách nhiệm cần thiết của bên cung cấp dịch vụ. Việc này thể hiện tinh thần trách nhiệm cũng như tính chuyên nghiệp của công ty dịch vụ.
Đơn giá thiết kế biệt thự tại Nam Định
Dưới đây là báo giá thiết kế biệt thự tại tỉnh Nam Định mà chúng tôi đang triển khai:
- Thiết kế Kiến trúc: 200.000 – 250.000 đồng/m2
- Thiết kế Nội thất: 250.000 – 300.000 đồng/m2
Lưu ý: Giá thiết kế trên của chúng tôi chỉ mang tính chất tham khảo. Để được báo giá chi tiết nhất, quý khách vui lòng liên hệ Kiến trúc HC theo hotline: 0946267555 – 0979616043 để được hỗ trợ.
Thành phần hồ sơ thiết kế biệt thự tại Nam Định

Xem thành phần hồ sơ thiết kế biệt thự file PDF đầy đủ TẠI ĐÂY
Tại sao thiết kế biệt thự tại Nam Định nên chọn Kiến trúc HC?
Nguồn nhân lực
Công ty chúng tôi có đội ngũ nhân công dồi dào, tay nghề cao. Cùng với đó là những kiến trúc sư trẻ, năng động, nhiệt tình, có tính sáng tạo cao và rất am hiểu các kiến thức chuyên môn. Đảm bảo sẽ đưa ra được nhiều ý tưởng độc đáo, sáng tạo để tư vấn cho khách hàng.
Tôn trọng ý kiến khách hàng
Kiến trúc sư của công ty chúng tôi sẽ xây dựng bản thiết kế dựa trên sở thích, cá tính và nhu cầu của khách hàng. Chúng tôi sẽ đưa ra những ý kiến tư vấn để giúp gia chủ lựa chọn được những phương án tối ưu, hợp lý nhất. Điều này dựa theo nguyên tắc tôn trọng ý kiến và quyết định của khách hàng.
Trách nhiệm với công việc
Trong toàn bộ quá trình thi công, thiết kế chúng tôi có các kỹ sư, kiến trúc sư giám sát đảm bảo cho công trình được thi công một cách nhanh nhất. Đồng thời cũng đảm bảo được chất lượng cho cho công trình. Chúng tôi đảm bảo giám sát, kiểm tra chặt chẽ từng giai đoạn thi công của công trình; bàn giao đến khách hàng một công trình với chất lượng tốt nhất.
Khả năng thi công
Không chỉ là một công ty chuyên về thiết kế, kiến trúc HC cũng cung cấp dịch vụ thi công trọn gói. Cùng với đội ngũ thi công chuyên nghiệp, lành nghề chúng tôi đã hoàn thiện thi công nhiều dự án. Mang đến những công trình tốt được khách hàng tin tưởng và đánh giá cao.
Một số mẫu thiết kế biệt thự tại Nam Định
Hãy cùng chiêm ngưỡng một số mẫu thiết kế biệt thự đẹp, đẳng cấp tại Nam Định mà chúng tôi đã thực hiện:
Mẫu thiết kế biệt thự phong cách tân cổ điển
Giới thiệu về dự án
Tên chủ nhà: Anh Trần Ngọc Việt
Diện tích: 500m2
Phong cách thiết kế: Biệt thự 3 tầng theo phong cách tân cổ điển
Bố cục của các tầng:
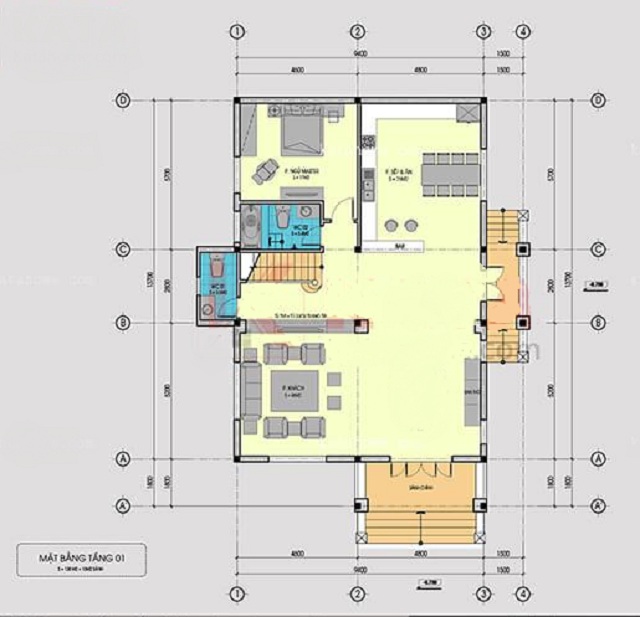
– Tầng 1 bao gồm: Phòng khách; phòng bếp kết hợp phòng ăn; và phòng vệ sinh chung.
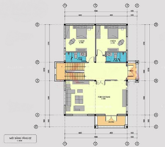
– Tầng 2 bao gồm: Phòng ngủ master có phòng vệ sinh ở trong; 02 phòng ngủ nhỏ có phòng vệ sinh riêng ở mỗi phòng.
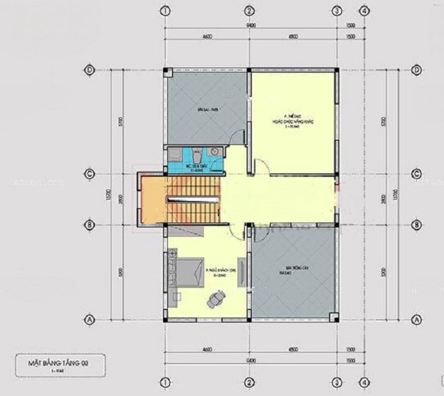
– Tầng 3 bao gồm: Phòng ngủ nhỏ có phòng vệ sinh khép kín; phòng giải trí; phòng truyền thống; phòng vệ sinh chung và một sân chơi nhỏ.


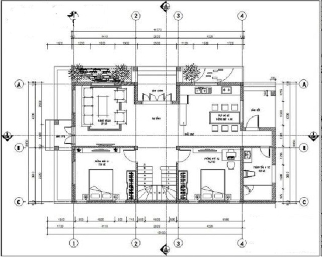
Hình ảnh phối cảnh 3D bên ngoài của công trình, hình ảnh bản vẽ
Gam màu chủ đạo của ngôi biệt thự là màu trắng và xám tạo một cảm giác thanh thoát, trang nhã. Hệ thống cửa dùng chất liệu gỗ và kính cùng với những những cột đá, đường nét trang trí chắc chắn tạo nên sự sang trọng, bắt mắt cho ngôi nhà.
Tầng 1 được bố trí bao gồm phòng khách rộng rãi, thoáng mát là không gian sinh hoạt chung cũng như tiếp khách của gia đình. Tiếp đến là khu vực bếp và phòng ăn nhìn ra khu vườn nhỏ tạo ra không gian thoải mái cho những bữa ăn của gia đình. Ngoài ra ở tầng 1 cũng có một căn phòng ngủ nhỏ rất thích hợp cho những người lớn tuổi không tiện đi lại. Cùng với đó là một phòng vệ sinh dùng chung rất tiện lợi cho những thành viên và khách của gia đình sử dụng.
Không gian tầng 2 được chia thành 3 phòng ngủ kèm những phòng vệ sinh ở bên trong. Trong đó có 2 phòng ngủ lớn có ban công để thông thoáng, ngắm cảnh. Phòng ngủ còn lại có diện tích nhỏ hơn nhưng cũng được thiết kế với đầy đủ công năng cần thiết.
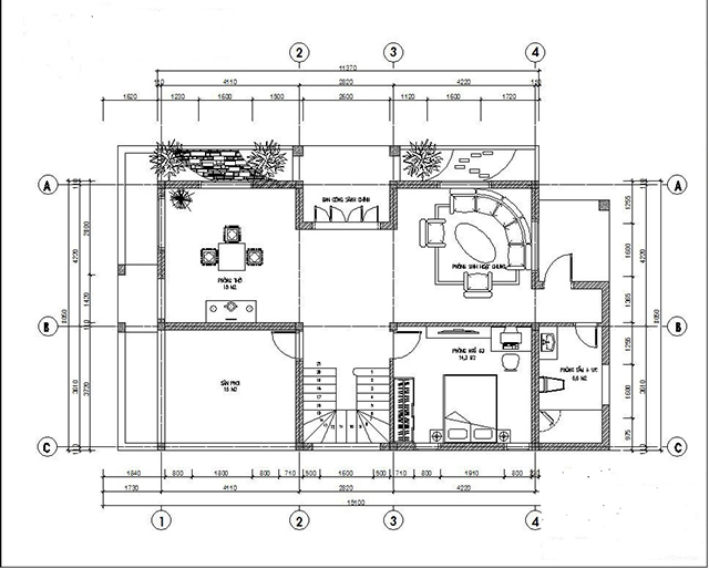
Mặt bằng tầng 3 được bố trí gồm một phòng giải trí là không gian sinh hoạt, vui chơi cùng nhau của các thành viên trong gia đình. Khu vực phòng truyền thống là nơi lưu giữ những khoảnh khắc đáng nhớ của gia đình. Cùng với đó là một sân chơi nhỏ nơi mọi người có thể thư giãn, hòa mình với thiên nhiên. Ngoài ra tầng 3 cũng có một phòng ngủ có wc khép kín ở bên trong, cùng với một phòng vệ sinh chung ở bên ngoài giúp các thành viên sinh hoạt, sử dụng thoải mái, tiện dụng.
Mẫu thiết kế biệt thự phong cách hiện đại có bể bơi

Mẫu thiết kế biệt thự này được thiết kế theo phong cách hiện đại. Các khối nhà được đua rộng để che nắng và mưa tốt hơn. Toàn bộ khu vực cửa được bố trí sát trần, cùng với đó là sự xuất hiện của hệ thống cây xanh nhằm tăng sự tương tác giữa con người với môi trường thiên nhiên xung quanh. Nhìn từ trên cao, căn biệt thự được bố trí kiểu dáng hình chữ L vô cùng cân đối, hài hòa. Khoảng cách dư ra ở giữa được bố trí hồ bơi theo sở thích của gia chủ.

Xung quanh hồ bơi được bố trí bàn ghế sân vườn cùng dù chống nắng. Hồ bơi được thiết kế đảm bảo độ rộng, độ cao cùng với đó là việc lát sàn gỗ có khả năng chống thấm hiệu quả. Phía trước khu vực hồ bơi, gia chủ cũng khéo léo bố trí thác nước nhằm giảm nhiệt độ và mang lại sự hài hòa trong phong thủy.
Mẫu thiết kế biệt thự nhà vườn đẹp
Giới thiệu về dự án
Tên chủ nhà: Anh Chính
Diện tích: 230m2
Phong cách thiết kế: Biệt thự nhà vườn 2 tầng theo phong cách hiện đại
Bố cục của các tầng:
– Tầng 1 bao gồm: Phòng khách; phòng bếp kết hợp phòng ăn; 2 phòng ngủ và phòng vệ sinh chung.
– Tầng 2 bao gồm: Phòng ngủ; phòng thờ, phòng sinh hoạt chung, phòng vệ sinh chung và sân phơi.
Tông màu chủ đạo của căn biệt thự là màu xanh lơ và xanh nhạt, kết hợp với màu xanh đen của mái ngói. Sự kết hợp giữa các màu tông lạnh tạo cảm giác nhẹ nhàng, đơn giản cho căn nhà. Cùng với đó kết hợp với những cây xanh tạo nên cảm giác xanh mát hòa mình cùng thiên nhiên.



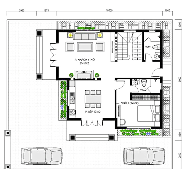
Mặt bằng tầng 1 được chia thành một phòng khách rộng rãi có tầm nhìn ra một khu vực cây xanh nhỏ giúp không gian tươi mát, thoải mái. Bên cạnh đó là khu vực bếp kết hợp với phòng ăn được trang bị đầy đủ, tiện dụng. Ngoài ra tầng 1 cũng có 2 phòng ngủ cùng với 1 phòng vệ sinh dùng chung.

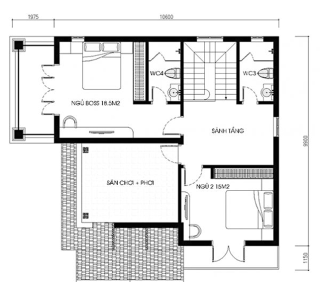
Không gian tầng 2 bao gồm một phòng thờ có không gian mở, thông thoáng rất thích hợp cho các công việc thờ cúng của gia chủ. Một phòng ngủ nhỏ cùng một không gian sinh hoạt chung nơi các thành viên có thể cùng nghỉ ngơi, thư giãn. Một phòng vệ sinh chung tiện dụng cho các thành viên sử dụng. Ngoài ra còn có thêm một sân phơi rộng rãi.

Mẫu thiết kế biệt thự mái thái
Giới thiệu về dự án
Tên chủ nhà: Anh Linh
Kích thước: 12.6m x 11.05m.
Phong cách thiết kế: Biệt thự mái thái 2 tầng hiện đại
Bố cục của các tầng:
– Tầng 1 bao gồm: Hiên; Phòng khách và khu vực thờ; Phòng bếp và khu vực bàn ăn; Phòng ngủ kèm wc; Phòng vệ sinh chung.
– Tầng 2 bao gồm: Sảnh lớn; Phòng ngủ lớn kèm wc ở trong; Phòng ngủ nhỏ; Sân Chơi và phơi đồ; Phòng vệ sinh chung.
Phần mái được thiết kế theo phong cách mái thái, hình chữ A được sơn màu ghi sáng cùng với tường được sơn tông màu sáng tạo sự thanh thoát, hiện đại cho cả công trình.

Việc sử dụng kết hợp cả hai chất liệu gỗ và kính cho hệ thống cửa của công trình tạo điểm nhấn cho cả căn biệt thự. Không những thế còn giúp tăng độ thông thoáng, mát mẻ vào mùa hè và ấm áp khi mùa đông. Hơn nữa sử dụng cửa kính sẽ giúp ngôi nhà tận dụng được ánh sáng tự nhiên làm nguồn chiếu sáng, đồng thời cũng giúp cách âm căn, giảm tiếng ồn bên ngoài.

Mặt bằng tầng 1 được thiết kế có một phòng khách kết hợp với khu vực thờ cúng ở bên trong; một phòng bếp kết hợp với phòng ăn được trang bị tiện nghi với đầy đủ các công năng. Ngoài ra còn có một phòng ngủ có phòng vệ sing ở bên trong rất thích hợp cho bố mẹ của chủ nhà. Bên cạnh đó để giúp cho việc sinh hoạt được tiện dụng thì có một phòng vệ sinh chung được bố trí ở sát mặt bên của ngôi nhà.

Không gian tầng 2 được chia ra thành các khu vực bao gồm một phòng ngủ chính có nhà vệ sinh ở bên trong với đầy đủ các công năng dành cho vợ chồng chủ nhà. Tiếp đó là một phòng ngủ nhỏ dành cho con trai của chủ nhà với khu vực vệ sinh nằm ở bên ngoài rất tiện dụng khi sử dụng. Bên cạnh đó còn có một khu vực sân chơi trồng các loại cây xanh điều hòa không khí cho căn nhà, và kết hợp sử dụng để phơi quần áo.

Mẫu thiết kế biệt thự mini 2 tầng

Mẫu biệt thự mini 2 tầng này được xây dựng với diện tích 80m2 theo phong cách hiện đại. Kiến trúc mái thái giúp ngôi nhà sang trọng hơn đồng thời tăng khả năng chống nóng hiệu quả.
Để tận dụng tối đa ánh sáng tự nhiên, gia chủ đã sử dụng hệ cửa kính cùng khu vực ban công rộng lớn. Khuôn viên xung quanh biệt thự được thiết kế làm khu vực đỗ xe và trồng cây xanh giúp mang lại không gian xanh mát, trong lành.
Mẫu thiết kế biệt thự cổ điển Pháp
Giới thiệu về dự án
Tên chủ nhà: Anh Vũ Đình Soái
Diện tích: 520m2
Phong cách thiết kế: Biệt thự mái thái tân cổ điển 3 tầng
Bố cục của các tầng:
– Tầng 1 bao gồm: Phòng khách; phòng thờ; phòng bếp kết hợp phòng ăn; phòng ngủ và phòng vệ sinh chung.
– Tầng 2 bao gồm: 2 Phòng ngủ; phòng thờ, phòng sinh hoạt chung, phòng vệ sinh chung.
– Tầng 3 bao gồm: Phòng ngủ; sân phơi; phòng tập Gym và sân trồng cây.
Màu sắc chủ đạo của căn biệt thự là tông màu trắng kết hợp với màu mái thái màu xám tối tạo sự hài hòa cho căn nhà. Sử dụng hệ thống cửa gỗ cùng những cột chống và những chi tiết trang trí cổ điển tạo nét sang trọng nhưng không kém phần hiện đại cho căn biệt thự.

Tầng 1 được bố trí phòng khách lớn thông thoáng, nơi tiếp khách của gia chủ. Bên cạnh đó là khu vực bếp kết hợp với phòng ăn rộng rãi là một không gian để gia đình có thể quây quần bên nhau dùng cơm hay tổ chức những buổi tụ họp nhỏ. Ngoài ra còn có một phòng ngủ nhỏ rất hữu dụng với những người cao tuổi không tiện di chuyển hay những người không thích ở tầng cao. Mặt khác tầng 1 còn có 2 phòng vệ sinh chung rất thuận lợi cho mọi người sử dụng.

Tầng 2 có một phòng sinh hoạt chung nối liền với ban công là một không gian rộng nơi gia đình có thể quây quần bên nhau cùng nhau thư giãn, giải trí tạo những khoảnh khắc ấm cúng. Bên cạnh đó là hai phòng ngủ có nhà vệ sinh riêng là không gian cá nhận nơi nghỉ ngơi của mỗi thành viên trong gia đình.

Tầng 3 bố trí một phòng tập Gym để mọi người trong nhà có thể tập thể dục rèn luyện sức khỏe. Bên cạnh đó có một phòng ngủ nhỏ và một phòng vệ sinh dùng chung để tiện cho sinh hoạt hàng ngày. Tầng 3 cũng có một sân trồng cây để gia chủ có thể trồng cây tạo một khu vườn nhỏ cho mình, vừa có thể thư giãn vừa điều hòa không khí cho căn nhà. Ngoài ra còn có một sân phơi kết hợp với ban công rất tiện dụng.

Trên đây là những mẫu thiết kế biệt thự tại Nam Định đẹp, đẳng cấp. Hy vọng thông qua bài viết của chúng tôi các bạn sẽ lựa chọn cho mình những phong cách thiết kế đẹp, phù hợp với nhu cầu của bản thân. Cùng với đó là lựa chọn được công ty cung cấp dịch vụ thiết kế biệt thự uy tín, chất lượng, giá cả hợp lý.
