Thiết kế biệt thự tại Bắc Ninh là một trong những hạng mục công trình quan trọng đang được Kiến trúc HC đẩy mạnh và phát triển. Với đội ngũ nhân viên giàu chuyên môn, có nhiều năm kinh nghiệm, Kiến trúc HC tự hào là đơn vị thiết kế biệt thự hàng đầu được đông đảo khách hàng khu vực Bắc Ninh tin tưởng lựa chọn.
Một số mẫu thiết kế biệt thự tại Bắc Ninh
Dưới đây là một số mẫu thiết kế biệt thự tại Bắc Ninh mà bạn có thể tham khảo:
-
Thiết kế biệt thự hiện đại tại Bắc Ninh
Thông tin chi tiết công trình:
- Tên khách hàng: Anh Hoàng Việt
- Địa chỉ: TP. Bắc Ninh
- Phong cách thiết kế: Biệt thự 3 tầng theo phong cách hiện đại
- Kích thước tổng thể: 28m x 15m.
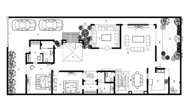
Công năng: Thiết kế biệt thự gồm 3 tầng với công năng mỗi tầng như sau:
- Tầng 1: Gara + Phòng Khách + Phòng Bếp – ăn + Khu vực ăn ngoài trời + Phòng vệ sinh chung + Phòng giặt – phơi.
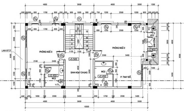
- Tầng 2: Phòng ngủ – wc + Hai Phòng ngủ + Phòng vệ sinh chung.
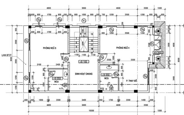
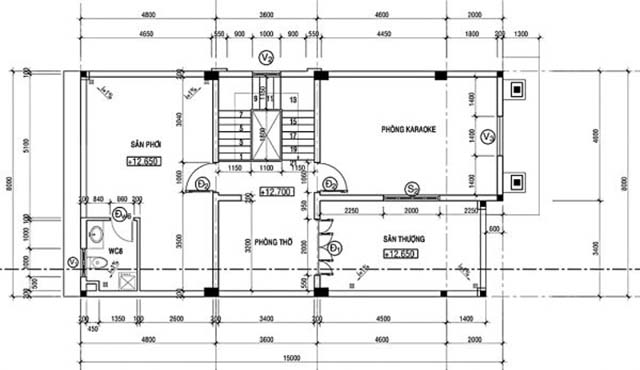
- Tầng 3: Phòng thờ + Phòng Sinh hoạt chung + Phòng Ngủ + Phòng vệ sinh chung.
Hình ảnh phối cảnh 3D của công trình

Thiết kế biệt thự này được đội ngũ kiến trúc sư của Kiến trúc HC thiết kế theo phong cách hiện đại, trẻ trung. Mặt tiền tầng 1 được lát đá hoa cương màu vàng vô cùng nổi bật. Các cột được ốp gỗ tạo sự chắc chắn, vững chãi cho biệt thự 3 tầng.

Tầng hai với màu sắc chủ đạo là màu kem trắng với đường ốp đá hoa cương tạo nên vẻ đẹp sang trọng, tổng thể thống nhất cho căn biệt thự. Cửa kính bọc xung quanh giúp các căn phòng tận dụng được tối đa nguồn ánh sáng tự nhiên.

Điểm nổi bật của thiết kế biệt thự này là phần mái thái xếp lớp giữa các tầng cùng hệ thống mái hiên che mưa che nắng cực tốt. Ngoài ra, xung quanh còn được bố trí thêm các chậu cây cảnh tạo không khí trong lành.

Phòng khách thiết kế theo phong cách hiện đại với bộ sofa lớn. Thiết kế cửa kính xung quanh tăng cường ánh sáng tự nhiên cho không gian.

Không gian phòng bếp với gam màu ghi xám sang trọng. Toàn bộ khu vực ăn uống, sinh hoạt trở nên ấm áp hơn.
-
Thiết kế biệt thự đẹp độc đáo tại Bắc Ninh
Thông tin chi tiết công trình:
- Tên khách hàng: Chị Phương – Anh Tiến
- Địa chỉ: TP. Bắc Ninh
- Phong cách thiết kế: Biệt thự hai tầng thiết kế theo phong cách hiện đại
- Kích thước: 8m x 25m.
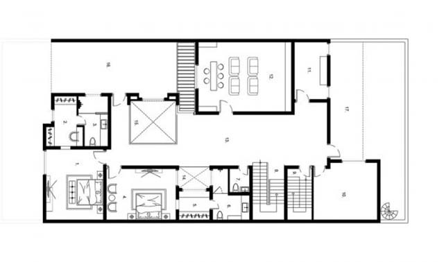
Công năng sử dụng: Biệt thự được thiết kế 2 tầng độc đáo với công năng sử dụng của từng tầng như sau:
- Tầng 1: Gara để ô tô + Phòng ngủ master + Phòng ngủ 1 + Sảnh thang + Phòng bếp + Phòng sinh hoạt chung + Ăn.
- Tầng 2: Phòng Thờ + Phòng ngủ 2 + Phòng ngủ 3 + Sảnh thang + Phòng thư giãn + Kho.
Hình ảnh phối cảnh 3D công trình

Thiết kế biệt thự đẹp, độc đáo này theo phong cách hiện đại. Cách bố trí mặt bằng đối xứng, không gian bố trí sáng tạo, ấn tượng mang lại cảm giác năng động, thoải mái.

Điểm nhấn độc đáo của thiết kế biệt thự này là hệ sống sân vườn vô cùng ấn tượng. Xu hướng thiết kế mới, phong cách trẻ trung. Đây cũng là mẫu thiết kế biệt thự được nhiều khách hàng lựa chọn hiện nay.
Tọa lạc tại khu vực có ngoại cảnh thiên nhiên thoáng đãng, căn biệt thự này với không gian xanh gần gũi thiên nhiên. Đường nét thiết kế ấn tượng, màu nâu vàng của gỗ càng tăng thêm sự sang trọng.

Mặt bằng tầng 1 được bố trí hợp lý. Từ sảnh chính vào, bên trái là phòng khách với thiết kế rộng, làm nơi sinh hoạt chung thoải mái, rộng rãi cho cả gia đình.

Tầng 2 bố trí 2 phòng ngủ với nhà vệ sinh khép kín mang lại sự riêng tư, thoải mái cho các thành viên trong gia đình. Vị trí phòng giặt, phòng kho được bố trí tiện lợi để các thành viên có thể sinh hoạt dễ dàng.
-
Thiết kế biệt thự 2 tầng sang trọng, chuyên nghiệp tại Bắc Ninh
Thông tin chi tiết công trình:
- Tên khách hàng: chị Hồng
- Địa chỉ: Bắc Ninh
- Phong cách thiết kế: biệt thự 2 tầng hiện đại
- Diện tích: 170m2
Công năng sử dụng:
Với diện tích 170m2, biệt thự 2 tầng sang trọng tại Bắc Ninh của gia đình chị Hồng được chia làm 2 tầng sử dụng như sau:
- Tầng 1: sảnh chính, sảnh phụ, 1 sảnh hành lang, 1 phòng khách, 1 phòng ăn, 1 phòng bếp, 1 phòng ngủ khép kín, 1 nhà vệ sinh chung
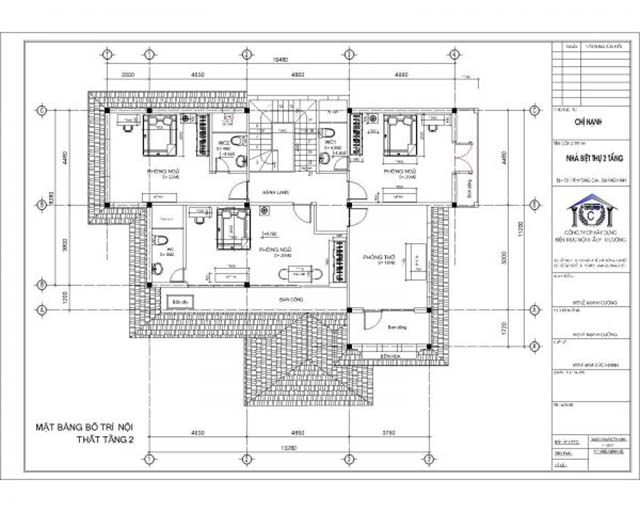
- Tầng 2: 1 phòng thờ, 3 phòng ngủ, trong đó 2 phòng ngủ khép kín, 1 nhà vệ sinh chung
Hình ảnh phối cảnh 3D công trình

Phong cách thiết kế biệt thự sang trọng, hiện đại và phù hợp cho gia chủ có mệnh Mộc. Từng chi tiết trong nhà từ ngoại thất cho đến nội thất đều thể hiện chất “mộc” với tường ốp gỗ sang trọng, độc đáo.

Thiết kế mái ngói tạo điểm nhấn độc đáo, khác biệt hoàn toàn so với các mẫu thiết kế biệt thự mái thái hoặc thiết kế nhà biệt thự kiểu Pháp cổ.

Tầng 1 với diện tích 29m2 với cách bố trí phòng khách rộng, thoáng đãng. Phòng đầy đủ tiện nghi với khu vực vệ sinh khép kín tạo sự riêng tư. Không gian bếp là nơi quây quần của các thành viên trong gia đình.

Tầng 2 được bố trí 3 phòng ngủ với khu vực vệ sinh riêng. Thiết kế cửa sổ và các ô thông gió mang lại ánh sáng và giúp việc lưu thông không khí trong nhà trở nên dễ dàng hơn.
-
Thiết kế biệt thự tân cổ điển đẹp ấn tượng tại Bắc Ninh
Thông tin chi tiết công trình:
- Khách hàng: Anh Việt – Chị Dung
- Địa chỉ: TP. Bắc Ninh
- Phong cách thiết kế: Biệt thự tân cổ điển 4 tầng
- Kích thước: 10m x 15m.
Công năng sử dụng:
Biệt thự gồm 4 tầng với công năng sử dung mỗi tầng như sau:
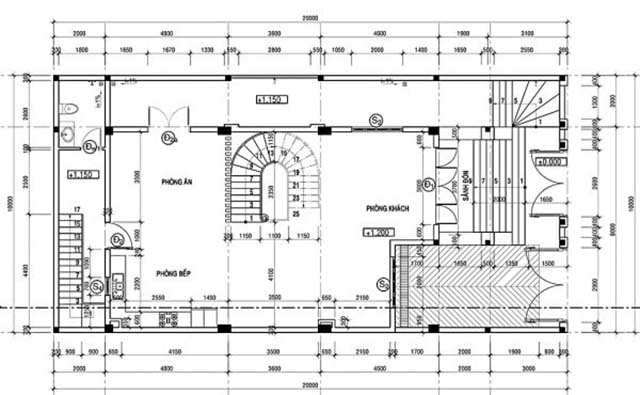
- Tầng 1: Gara ô tô + Sảnh + Phòng khách + Phòng ăn + Phòng bếp + Phòng vệ sinh chung.
- Tầng 2: Phòng Sinh hoạt chung + Phòng ngủ master + Phòng ngủ 1
- Tầng 3: Phòng Sinh hoạt chung + Phòng ngủ master + Phòng ngủ 1
- Tầng 4: Phòng thờ + Phòng giải trí – karaoke + Sân thượng + Sân phơi – wc – giặt
Hình ảnh phối cảnh 3D

Với gam màu trắng nổi bật, ngôi biệt thiết kế với lối kiến trúc tân cổ điển mang lại sự sang trọng, tinh tế. Đặc biệt, việc phối hợp ngói màu xanh mang lại sự hiện đại, thời thượng. Thiết kế cổng, lan can,…với màu màu càng tôn lên sự ấn tượng, đẳng cấp.

Tầng 1 bố trí phòng khách rộng với cửa sổ bằng kính giúp không gian thông thoáng và tận dụng tối đa ánh sáng tự nhiên. Cầu tháng hình chữ U uốn cong ngăn cách phòng khách và phòng ăn.

Tầng hai là nơi nghỉ ngơi, sinh hoạt của các thành viên trong gia đình. Phòng sinh hoạt chung được bố trí ở cầu thang tiện cho việc nói chuyện, gặp gỡ.

Được thiết kế tương tự tầng hai, tầng 3 vừa bố trí phòng ngủ vừa là không gian sinh hoạt của cả gia đình. Toàn bộ nội thất được bố trí theo mục đích sử dụng của cá nhân, phòng vệ sinh khép kín tạo sự thoải mái, riêng tư.

Tầng 4 được gia chủ thiết kế riêng để bố trí bàn thờ tổ tiên với sự yên tĩnh, trang nghiêm. Ngoài ra, thiết kế biệt thự tại Bắc Ninh với phong cách tân cổ điển này còn có khu vực sân thượng rộng để mọi người có thể tập thể dục hoặc trồng cây cảnh.
Những lưu ý khi thiết kế biệt thự tại Bắc Ninh
Khi lựa chọn thiết kế biệt thự tại Bắc Ninh, quý khách cần lưu ý một số vấn đề sau:
Lựa chọn công ty thiết kế biệt thự uy tín
Lựa chọn công ty thiết kế uy tín, chuyên nghiệp là một trong những lưu ý quan trọng. Để có được phương án thi công chuẩn nhất, đòi hỏi phải có sự hỗ trợ của các chuyên gia, đội ngũ kiến trúc sư có chuyên môn, tay nghề cao.
Do đó, hãy lựa chọn một đơn vị thi công uy tín, chuyên nghiệp để làm người bạn đồng hành, hỗ trợ trong quá trình thi công biệt thự. Với kinh nghiệm nhiều năm cùng đội ngũ kiến trúc sư giàu chuyên môn, Kiến trúc HC tự hào là đơn vị đi đầu, được đánh giá cao trong lĩnh vực thiết kế biệt thự, nhà ở.
Chúng tôi là đối tác chiến lược của nhiều công ty, doanh nghiệp tại Khu vực Bắc Ninh. Lựa chọn thiết kế biệt thự tại Kiến trúc HC chắc chắn sẽ không làm bạn thất vọng.
Lựa chọn phong cách thiết kế phù hợp

Tùy vào sở thích cũng như nhu cầu của mỗi cá nhân mà bạn có thể lựa chọn phong cách thiết kế biệt thự phù hợp nhất. Đây sẽ là nguồn cảm hứng để bạn cho ra đời tác phẩm độc đáo, ấn tượng.
Bạn có thể lựa chọn thiết kế biệt thự theo phong cách hiện đại, cổ điển, tân cổ điển,….Ngoài ra, bạn có thể tham khảo thêm với đội ngũ kiến trúc sư để được gợi ý và đưa ra lựa chọn phù hợp nhất.
Công ty thiết kế biệt thự tại Bắc Ninh
Là đơn vị hoạt động trong lĩnh vực xây dựng và có nhiều kinh nghiệm trong thiết kế biệt thự, Kiến trúc HC là sự lựa chọn hàng đầu của đông đảo khách hàng tại khu vực Bắc Ninh khi có nhu cầu thi công, thiết kế nhà ở.
Với đội ngũ chuyên viên giàu chuyên môn, có trình độ cao, chúng tôi luôn cập nhật các xu hướng mới và đáp ứng tối đa mọi nhu cầu của quý khách. Kiến trúc HC luôn đề cao chất lượng cũng như sự hài hòa trong tổng thể nội thất và ngoại thất của biệt thự.
Đến với chúng tôi, bạn sẽ được gợi ý những phong cách thiết kế mới nhất, ấn tượng nhất và mang lại sự sang trọng, thể hiện dấu ấn riêng của gia chủ. Chúng tôi hỗ trợ tận tình, tư vấn hoàn toàn miễn phí với chất lượng công trình cao, giá cả cạnh tranh nhất.
Quy trình thiết kế biệt thự tại Bắc Ninh
Dưới đây là toàn bộ quy trình thiết kế biệt thự tại Bắc Ninh của Kiến trúc HC:
Khảo sát thực tế, xác định nhu cầu thiết kế của gia chủ
Sau khi nhận được yêu cầu từ phía khách hàng, chúng tôi sẽ cử đội ngũ kiến trúc sư đến trực tiếp và trao đổi với bạn. Chúng tôi sẽ tiến hành khảo sát thực tế, lắng nghe nhu cầu từ gia chủ để đưa ra những phương án, ý tưởng tốt nhất.
Ở bước khảo sát này cần phải được đo đạc tỉ mỉ, chi tiết để đưa ra bản vẽ trung thực từ đó tính toán chi phí vật liệu chính xác nhất.
Lên bản vẽ thiết kế biệt thự
Dựa trên nguyện vọng, yêu cầu cũng như mức tài chính của gia chủ, kiến trúc sư của Kiến trúc HC sẽ lên bản vẽ chi tiết biệt thự. Trong quá trình này, cả hai bên sẽ tiến hành trao đổi để có bản vẽ tối ưu và phù hợp nhất.
Lựa chọn vật liệu thiết kế biệt thự
Dựa theo ngân sách và yêu cầu từ phía gia chủ, chúng tôi sẽ bắt đầu tính toán chi phí vật liệu để thiết kế, xây dựng biệt thự theo đúng bản vẽ đã đưa ra.
Giám sát thi công đảm bảo đúng tiến độ
Để đảm bảo hoàn thành biệt thự theo đúng cam kết trong hợp đồng, chúng tôi sẽ cử đội ngũ giám sát thi công. Liên tục đôn đốc, đảm bảo chất lượng công trình tốt và bàn giao đúng thời hạn cho gia chủ.
Kiến trúc HC – Đơn vị chuyên thiết kế biệt thự tại Bắc Ninh

Được thành lập từ năm 2013, với hơn 7 năm hoạt động trong lĩnh vực thi công, thiết kế nội thất, Kiến trúc HC tự là hào một trong những đơn vị chuyên thiết kế biệt thự tại Bắc Ninh được đông đảo khách hàng lựa chọn.
Chúng tôi hiện là đối tác hàng đầu của nhiều công ty, hộ gia đình tại khu vực Hải Phòng.
Nguồn nhân lực
Kiến trúc HC sở hữu đội ngũ nhân viên trẻ, giàu chuyên môn và nhiệt huyết. Họ là những kiến trúc sư có nhiều năm kinh nghiệm, chuyên thiết kế, thi công nội thất nhà ở, biệt thự và đưa ra những ý tưởng thiết kế độc đáo, mới lạ cho khách hàng.
Tôn trọng ý kiến khách hàng
Chúng tôi luôn lấy sự hài lòng của quý khách làm thước đo chất lượng dịch vụ, do đó trong quá trình hợp tác, chúng tôi tôn trọng ý kiến của quý khách. Mọi thiết kế, ý tưởng của chúng tôi đều dựa trên nguyện vọng và yêu cầu của khách hàng.
Trong quá trình làm việc, nếu có bất cứ khúc mắc nào, cả hai bên sẽ ngồi lại và cùng thống nhất đưa ra quyết định cuối cùng dựa theo mong muốn của gia chủ.
Trách nhiệm với công việc
Chúng tôi làm việc tâm huyết, nhiệt tình và có trách nhiệm cao với công việc. Mỗi công trình, thiết kế là sản phẩm tinh thần và là con đẻ của chúng tôi. Do đó đội ngũ nhân viên của Kiến trúc HC luôn nỗ lực hết mình, tận tâm để cho ra đời những công trình chất lượng nhất.
Khả năng thi công
Lựa chọn thiết kế nội thất tại Bắc Ninh của Kiến trúc HC, bạn hoàn toàn có thể yên tâm bởi khả năng thi công nhanh chóng, tiết kiệm thời gian và tối ưu chi phí cho khách hàng.
Chúng tôi đảm bảo thi công đúng tiến độ, đội ngũ nhân công làm việc tận tụy, bàn giao biệt thự đúng ngày theo cam kết trong hợp đồng.
Khách hàng nói gì khi thiết kế biệt thự tại Bắc Ninh của chúng tôi
Cùng lắng nghe những tâm sự, ý kiến đánh giá của khách hàng tại Bắc Ninh về Kiến trúc HC:
Chị Mai (Từ Sơn – Bắc Ninh) cho biết: “Với mong muốn xây dựng một căn biệt thự phong cách hiện đại, sang trọng, tôi tìm đến Kiến trúc HC để được tư vấn, hỗ trợ. Sau thời gian khảo sát, đội ngũ kiến trúc sư của công ty đã đưa ra phương án thiết kế khiến tôi cảm thấy vô cùng hài lòng. Sau thời gian thi công 6 tháng, căn biệt thự với phong cách hiện đại được ra đời, các chi phí thiết kế, xây dựng đều được tối ưu”.
Anh Tuấn (TP. Bắc Ninh) chia sẻ: “Tình cờ được một người bạn giới thiệu, tôi biết đến Kiến trúc HC và lựa chọn đây là đơn vị thiết kế, thi công biệt thự 3 tầng phong cách tân cổ điển của gia đình. Đội ngũ nhân viên, kiến trúc sư của công ty làm việc tâm huyết, tư vấn tận tình và có những ý tưởng độc đáo, tối ưu chi phí. Tôi cảm thấy vô cùng hài lòng về chất lượng công trình cũng như tác phong làm việc chuyên nghiệp của Kiến trúc HC”.
Tham khảo chi phí thiết kế biệt thự tại Bắc Ninh
Dưới đây bảng giáo giá chi phí thiết kế biệt thự tại Bắc Ninh mà quý khách có thể tham khảo thêm:

Chi phí thiết kế biệt thự tại Bắc Ninh
Lưu ý: Bảng báo giá trên của chúng tôi chỉ mang tính chất tham khảo, để được báo giá chi tiết, chính xác quý khách vui lòng liên hệ theo hotline: 0946.267.555 để được tư vấn, hỗ trợ.
Thiết kế biệt thự tại Bắc Ninh của Kiến trúc HC cam kết mang đến chất lượng công trình tốt nhất, giá cả cạnh tranh, thi công đúng thời gian. Đừng quên liên hệ với chúng tôi khi có nhu cầu. Kiến trúc HC hân hạnh được phục vụ quý khách!
