Nhà vệ sinh dưới gầm cầu thang là một thiết kế tối ưu cho những ngôi nhà có không gian nhỏ hẹp. Tuy nhiên liệu có nên xây nhà vệ sinh duới gầm cầu thang hay không? Bản vẽ nhà vệ sinh dưới gầm cầu thang như thế nào cho hợp lý? Tìm câu trả lời ngay sau đây nhé!
Có nên xây nhà vệ sinh dưới gầm cầu thang

- Ưu điểm: Nhà vệ sinh thiết kế dưới gầm cầu thang sẽ tiết kiệm được tối đa diện tích nhà và đáp ứng được đầy đủ công năng sử dụng, phù hợp với nhà nhỏ hẹp.
- Nhược điểm: Không hợp phong thủy, nhà vệ sinh là nơi thu tạp xú uế có tính âm năng nếu xây dưới gầm cầu thang sẽ ảnh hướng tới vận khí, sức khỏe của cả gia đình.
Cách hóa giải toilet, nhà vệ sinh dưới gầm cầu thang
Nếu vẫn muốn xây dựng nhà vệ sinh dưới gầm cầu thang thì bạn nên tham khảo những cách hóa giải sau:
+ Không thiết kế nhà vệ sinh ở trung tâm ngôi nhà
+ Không thiết kế cửa nhà vệ sinh đối diện với phòng bếp, cửa chính, phòng khách, phòng ngủ
+ Thiết kế thêm cửa sổ hoặc ống thông thoát để tiêu trừ xú uế, khí xấu.
+ Không xây dưới dạng mở
+ Dùng đá thạch anh để hút đi khí xấu, đem lại năng lượng tích cực và vận khí cho gia chủ.
+ Dùng cây phong thủy phù hợp để hóa giải.
Thiết kế nhà vệ sinh dưới gầm cầu thang theo nhu cầu của gia đình
Khi thiết kế nhà vệ sinh dưới gầm cầu thang thì bạn nên làm theo nhu cầu của các thành viên trong gia đình. Với những căn hộ có diện tích nhỏ thì việc thiết kế nhà vệ sinh dưới gầm cầu thang tầng 1 là hợp lý . Tuy nhiên chỉ nên xây nhà vệ sinh nhỏ để giải quyết nhu cầu vệ sinh tối thiểu cho khách, cho các thành viên trong gia đình nhưng không nên tích hợp cả khu tắm giặt.

Trang trí nội thất bên ngoài nhà vệ sinh gầm cầu thang để tạo sự thân thiện
Nhà vệ sinh dưới gầm cầu thang dễ quan sát nên cần thiết kế tránh bị trướng mắt, không quá nổi bật, không hợp phong thủy. Bạn nên bài trí nhẹ nhàng, đơn giản và mang lại cảm giác thoải mái, dễ chịu nhất.
Hướng dẫn cách làm nhà vệ sinh dưới gầm cầu thang
Để thiết kế và xây dựng nhà vệ sinh dưới gầm cầu thang được đẹp và hợp lý nhất bạn cần tham khảo những quy trình hướng dẫn sau.
Kích thước nhà vệ sinh dưới gầm cầu thang
Kích thước nhà vệ sinh là yếu tố quan trọng nhất khi xây dựng. Bạn có thể chọn lựa những kích thước sau sao cho phù hợp nhất:
+ Kích thước nhà vệ sinh đẹp nhất là từ 4 – 6m2 để dễ dàng định hình, phân bố không gian và lắp đặt các thiết bị vệ sinh.
+ Kích thước nhà vệ sinh tối tiểu là 2,5 – 3m2. Kích thước này vẫn đủ để bố trí những nội thất cơ bản để thuận tiện cho việc sử dụng. Nếu diện tích nhà bạn quá nhỏ thì chỉ nên đặt bồn cầu và không thêm thiết bị vệ sinh khác.
Kích thước nhà vệ sinh dưới cầu thang tiêu chuẩn:
+ Kích thước cửa nhà vệ sinh: 1.9m x 0.68m, 2.1 m x 0.82m, 2.3m x 1.02m,
+ Chiều cao trần tối thiểu: 2.2m,
+ Chiều cao sàn đến chậu rửa: 82cm- 85cm,
+ Chiều cao vòi sen để tắm: 170 – 175cm,
+ Chiều cao mắc áo: 165- 170cm,
+ Gạch ốp tường: 20x20cm hoặc 20x30cm,
+ Gạch lát nền: 20x20cm.
Bản vẽ nhà vệ sinh dưới gầm cầu thang chi tiết nhất
Để dễ dàng hình dung, lên ý tưởng và xây dựng nhà vệ sinh dưới gầm cầu thang hợp lý nhất, bạn có thể tham khảo một số bản vẽ sau:

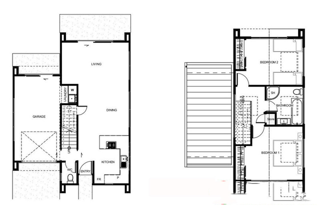
Bản vẽ nhà vệ sinh dưới gầm cầu thang trong tổng thể ngôi nhà

Bản vẽ nhà vệ sinh dưới gầm cầu thang dành cho góc trái.

Bản vẽ nhà vệ sinh dưới gầm cầu thang dành cho góc phải.
Tính toán chi phí thiết bị vệ sinh và nguyên vật liệu
Trước khi xây dựng bạn cần lên dự trù tính toán chi phí đầu tư cho nguyên vật liệu và thiết bị vệ sinh sao cho hợp lý nhất. Càng tính toán kỹ càng thì bạn càng tiết kiệm được nhiều chi phí phát sinh không đáng có. Bạn có thể tham khảo một số chi phí cơ bản sau:
+ Chi phí gạch ốp lát: Dao động khoảng 110.000 – 500.000/m2
+ Chi phí thuê thợ: Dao động khoảng 250.000 – 300.000/người/ngày
+ Chi phí mua bồn cầu: Khoảng 1.000.000 trở lên (tùy từng thương hiệu, chất liệu, công năng)
+ Chi phí mua chậu rửa: Khoảng 300.000 trở lên (tùy từng thương, chất liệu, công năng)
Một số mẫu thiết kế nhà vệ sinh dưới gầm cầu thang đẹp, tiện dụng
Dưới đây là một số mẫu nhà vệ sinh dưới gầm cầu thang đẹp, tiện dụng, thiết kế hợp lý nhất:

Thiết kế nhà vệ sinh mang phong cách hiện đại, hài hòa với không gian chung. Thiết bị vệ sinh bao gồm bồn cầu và chậu rửa mặt kèm gương xinh xắn.

Nhà vệ sinh được thiết kế ấn tượng, tối đa diện tích sử dụng mà vẫn đảm bảo được đầy đủ công năng.

Nhà vệ sinh mang phong cách tối giản, sử dụng màu tương phản đem lại cảm giác tươi sáng, không bị bí bách, chật chội.

Nhà vệ sinh dưới gầm cầu thang thiết kế thông thoáng, sạch sẽ và đẹp mắt.

Mẫu nhà vệ sinh dành cho không gian hẹp nhất. Chỉ lắp đặt những thiết bị vệ sinh chính để không gian được thoải mái, không bị chật chội khó chịu.
Với những mẫu thiết kế nhà vệ sinh dưới gầm cầu thang đẹp, hợp lý và chi tiết nhất trên đây, hy vọng bạn đã lựa chọn được cho mình mẫu ưng ý nhất. Liên hệ ngay với Kiến Trúc HC để được tư vấn thiết kế nhà vệ sinh dưới gầm cầu thang đẹp, tiện ích, hợp phong thủy nhất nhé!
