Trong số bài viết hôm nay, Kiến Trúc HC sẽ đưa bạn đi tham khảo, khám phá 10 mẫu thiết kế mặt bằng biệt thự vườn đẹp, hiện đại nhất trong bài viết ngày hôm nay.
1. Thế nào là bản vẽ mặt bằng tổng thể biệt thự?

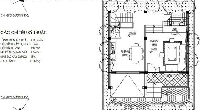
Bản vẽ mặt bằng tổng thể biệt thự được hiểu là bản vẽ trong đo mô tả bằng hình chiếu một cách đầy đủ và chi tiết những đặc điểm có trong một công trình xây dựng. Thông thường, các thông tin có mặt trên tấm bản vẽ này bao gồm:
- Hướng nhà
- Cổng ra vào
- Hệ thống đường đi
- Hệ thống cây cối trang trí
Dựa vào bản vẽ mặt bằng tổng thể biệt thự, bạn sẽ có được cái nhìn chi tiết, tổng quan nhất cho công trình nhằm có thể sửa nhanh trước khi tiến hành vào khâu xây dựng.
2. Một số bản vẽ mặt bằng tổng thể biệt thự đẹp, chuẩn và hiện đại nhất
Để giúp bạn đọc tiện theo dõi một cách đầy đủ và chi tiết nhất, chúng tôi xin chia sẻ các bản vẽ mặt bằng tổng thể biệt thự đẹp, chuẩn, đã được áp dụng để xây cho nhiều công trình như sau:
2.1. Mẫu bản vẽ mặt bằng biệt thự sân vườn




2.2. Mẫu bản vẽ mặt bằng biệt thự hiện đại

3. Chia sẻ một vài kinh nghiệm chọn đơn vị thiết kế mặt bằng biệt thự
Để thiết kế mặt bằng biệt thự được tốt và hoàn hảo nhất, bạn hãy ghi nhớ một vài kinh nghiệm như sau:
- Hãy chọn những đơn vị có uy tín, hoạt động lâu năm trong nghề vì họ sẽ dễ dàng nắm bắt tâm lý của khách hàng, ghi nhớ và hiểu những yêu cầu mà khách hàng muốn.
- Hãy chọn đội ngũ sáng tạo dựa trên các bản vẽ mẫu của họ cũng như cách thức ứng xử, chăm sóc khách hàng của đội ngũ nhân viên. Từ đó, bạn sẽ thấy được họ đã tận tâm, trách nhiệm cũng như năng lực mà họ có tới đâu.
- Hãy chọn các đơn vị có dịch vụ thiết kế trọn gói cho toàn công trình nhằm tạo nên một tổng thể không gian hài hòa nhất cho biệt thự của bạn.
4. Một số mẫu mặt bằng biệt thự vườn đẹp, hiện đại nhất 2020





Vậy là, chúng tôi vừa chia sẻ đến bạn thông tin về: 10 mẫu thiết kế mặt bằng biệt thự vườn đẹp hiện đại. Hy vọng rằng, bạn sẽ có thêm thông tin hữu ích sau bài viết này.
Xem thêm:
Thiết Kế Biệt Thự Tại Thái Bình UY TÍN – ĐẲNG CẤP SỐ 1
Thiết Kế Biệt Thự Tại Hưng Yên UY TÍN
