Bạn đang có ý định xây nhà cấp 4 nhưng chưa lên được ý tưởng và có bản vẽ chi tiết để thực hiện? Đừng quá lo lắng, Kiến Trúc HC sẽ gửi tới bạn những bản vẽ thiết kế nhà cấp 4 đẹp, chi tiết, chi phí xây dựng hợp lý nhất ngay sau đây nhé!
Xem thêm:
30 Mẫu nhà cấp 4 mái thái ĐẸP, GIÁ RẺ, NHÌN LÀ MÊ
20+ Mẫu nhà cấp 4 3 phòng ngủ ĐẸP, GIÁ RẺ, được ưa chuộng
Tổng hợp các bản vẽ thiết kế nhà cấp 4 đẹp
Dưới đây là một số bản vẽ thiết kế nhà cấp 4 đẹp, đầy đủ công năng chi tiết nhất mà bạn có thể tham khảo:
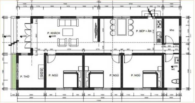
1. Mẫu bản vẽ thiết kế nhà cấp 4 mái tôn giá rẻ

Nhà cấp 4 mái tôn có chi phí xây dựng thấp, tận dụng được tối đa diện tích không gian và đáp ứng được những nhu cầu sinh hoạt cho hộ gia đình ở nông thôn. Đây là mẫu nhà được rất nhiều gia đình lựa chọn bởi thiết kế đơn giản mà vẫn đảm bảo được đầy đủ tiện nghi.

Mặt bằng công năng của nhà bao gồm: phòng khách, 3 phòng ngủ, phòng bếp, phòng thờ, nhà kho, nhà vệ sinh,… Diện tích nhà 7x15m thích hợp cho gia đình 3-4 thành viên.
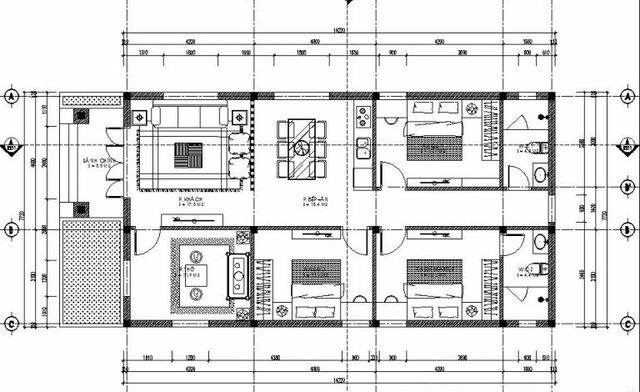
2. Mẫu bản vẽ thiết kế nhà cấp 4 mái thái hiện đại

Nhà cấp 4 mái thái hiện đại được sắp xếp hợp lý với 3 phòng ngủ, 1 phòng thờ. Tuy diện tích không quá lớn những vẫn đảm bảo được đầy đủ công năng.

Mẫu nhà này có thiết kế đơn giản nhưng không kém phần hiện đại và rất được ưa chuộng khi xây dựng tại khu vực nông thôn, ngoại thành.
3. Bản vẽ nhà cấp 4 3 phòng ngủ tiện nghi

Nhà cấp 4 3 phòng ngủ được thiết kế đơn giản với mái ngói kết hợp với gam màu nhà trắng – ghi giúp tăng tính thẩm mỹ.

Diện tích đất xây dựng khoảng 100m2 với công năng bao gồm 3 phòng ngủ, 1 phòng khách, 1 bếp, nhà vệ sinh.
4. Bản vẽ thiết kế nhà cấp 4 9x15m2

Mẫu nhà cấp 4 9x15m thiết kế dạng mái thái tiết kiệm chi phí. Nhà xây theo hình chữ L giúp tăng diện tích sử dụng và không gian rộng rãi, đẹp và thoáng hơn.

Mẫu nhà có diện tích 9x15m bao gồm 1 phòng khách, 4 phòng ngủ, 1 gara, 1 vệ sinh, phòng bếp + ăn, phòng thờ.
5. Bản vẽ thiết kế nhà cấp 4 150m2

Mẫu nhà này có phối cảnh mặt tiền khá đơn giản với phần mái nhà được thiết kế đua ra phía trước thành mái hiên tiện dụng.

Diện tích xây nhà 13x14m với 1 phòng khách, 3 phòng ngủ, 1 gara để xe, 1 phòng bếp + ăn và 2 nhà vệ sinh.
6. Bản vẽ nhà cấp 4 90m2

Mẫu nhà cấp 4 90m2 được xây theo dạng chữ L tạo ra không gian thoáng đãng rộng rãi. Phía sân trước nhà có thể tận dụng làm nơi để xe hoặc nơi thư giãn nghỉ ngơi cho cả gia đình.
Diện tích xây dựng của nhà là 7,5x12m với mặt bằng công năng bao gồm 2 phòng ngủ, phòng bếp + ăn, nhà vệ sinh và 1 phòng khách.
7. Bản vẽ nhà cấp 4 chữ L 100m2

Đối với mẫu nhà này bạn có thể lựa chọn 1 trong 2 phương án thiết kế: 1 là để phần mái thả xuống làm hiên để xe, 2 là để trống phần hiên nhà để xây dựng tiểu cảnh giúp không gian trở nên đẹp và thân thiện hơn.
Mẫu nhà được thiết kế với 1 phòng khách, 1 bếp và 3 phòng ngủ. Nhà vệ sinh có thể bố trí bên ngoài sao cho hợp lý nhất.
Chi phí thi công nhà cấp 4 dự kiến
Chi phí thi công nhà cấp 4 dự kiến là:
- Nhà cấp 4 mái tôn: 4 – 5 triệu/m2
- Nhà cấp 4 mái ngói: 5 – 6 triệu/m2.
Tùy thuộc vào những yêu cầu riêng của khách hàng mà chi phí thi công có thể thay đổi. Khách hàng nên cân nhắc thật kỹ lưỡng trước khi tiến hành thi công.
Cách tính giá xây nhà cấp 4 tham khảo
Ví dụ một ngôi nhà cấp 4 có diện tích 40m2 và muốn làm mái bằng thì ta có thể dự kiến giá tiền xây dựng như sau:
- Giá xây nhà tối thiểu: 40×5 = 200 triệu
- Giá xây nhà tối đa: 50×5 = 240 triệu
Nếu muốn xây nhà cấp 4 mái thái có diện tích 100m2 thì giá xây dựng khoảng:
- Đơn giá xây dựng dự kiến tối thiểu: 100×1.3×5 triệu = 650 triệu
- Đơn giá xây dựng tối đa: 100×1.6×6 triệu = 960 triệu
- Đơn giá xây dựng 5 triệu/1 m2: 100×1.6×5 triệu = 800 triệu
Trên đây là những bản vẽ thiết kế nhà cấp 4 đẹp, hiện đại, tiết kiệm chi phí xây dựng nhất mà Kiến Trúc HC đã tổng hợp được. Hy vọng bài viết đã cung cấp được nhiều kiến thức hữu ích cho bạn đọc! Trân trọng!
